Welcome in! We love how we snagged ourselves a little corner unit all the way at the end of the corridor. This gives us the privacy we love to build out little home
Before we show you around, let us take a look at the overview of the house.
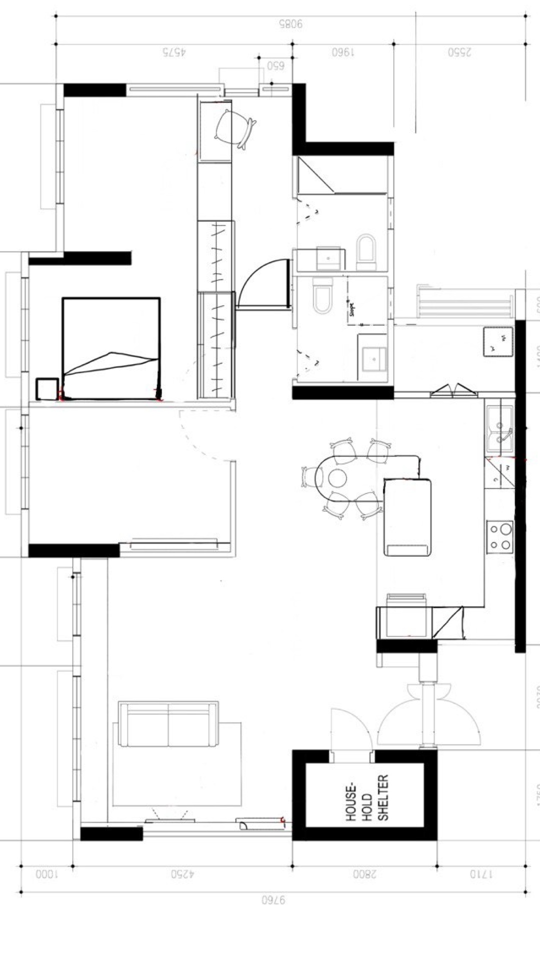
We decided to follow our gut and hack the master bedroom and 1 of the common rooms to make it a huge room for us to chill in! In order to fit our King sized bed without compromising the walk space, we decided to move the bed into where the common room used to be and honestly it was the best decision ever at this point of our renovation.
Tip: When everyone tells you not to do it, but you feel it in your guts that you're right.. Just do it! Your House Your Choices, Your Comfort matters
This is our main living area where both of us spend most of our time chilling and sometimes even working. We wanted a small sofa enough for the both of us yet also create enough space for guests to sit around when they visit. So what better way to do so by creating a settee next to our 3/4 height windows which also doubles up as storage!
Tip: If you plan to have pets, your choice of sofa is REALLY important.
We chose a leather sofa so that it is easy to clean up in the event of any accidents :) Same goes for our decision on having tiles for the whole house too!
PS: if you are wondering where our TV console is, our ID came up with the genius idea to hide our wires and devices in the settee storage so we get to keep the clean look that we wanted!
Welcome to our Kitchen, the one space that gave us the most headache! We went back and forth and debated over open or closed kitchen for the longest time. We finally decided on an open kitchen concept but guess what? This also means that we will need to take into consideration the capacity of our air con(s) in the living room now that we have a bigger space to cool.
Our ID cleverly integrated our dining table to the island and we LOVE IT! it was a perfect compromise because one of us wanted to have meals on the island while the other wanted a proper dining area.
Tip: THERE IS SUCH A THING AS TOO MUCH STORAGE. While having more storage is great, you don't want your kitchen looking cluttered too :)
Countertop height is also VERY important and do take into consideration the kind of built in appliance you plan to have as they affect the height of your countertop.
As we enter the master bedroom, we are greeted with gorgeous natural light from the little window. We used to call it the awkward window, but after experiencing the wind flow and light, we have grown to love it.
Planning of wardrobe space was quite a headache for us as well since one of us is vertically challenged, we had to find ways to best maximise the wardrobe height, while creating storage and keep the items easy to reach.
Tip: Plan ahead if you are intending to hang your clothes on hangers or fold them into drawers. Do take into consideration that most automated drying systems today are more hanger friendly so folding clothes might be a thing of the past.
How perfect is this space for a little vanity corner. The natural light adds a touch of sunshine when we wake up in the morning for our routine before heading off to work!
Next we come to the place where it concerns everyone's business LITERALLY. We originally intended to leave the toilets untouched but upon seeing the default tiles provided by HDB, we decided to overlay them to match our overall aesthetics of the house.
No doubt this was an expensive decision, but we are loving the results of it.
Tip: Most BTO bedrooms tend to be smaller than old HDB flats. Take into consideration the walk space when deciding between a king or queen sized bed. This affects the size of the bedside table you will be purchasing too :)
And onto the part of the house where we probably spend most of our lives in :) The BEDROOM!
Earlier we mentioned that we shifted our bed to where the common room used to be. So now, the space in the original master bedroom acts as a chill spot instead!
We decided earlier on that mattress was very important, but everything changed after a visit to the Woosa Showroom. We learnt that not only mattress is important, the position that we slept in matters as well! So we decided on the split king woosa adjustable bed so we both can get into our preferred sleeping positions and get a good nights rest.
Finally, our master bathroom. We wanted a different look and feel for this space and we love what our ID has done with the tiles here. This is giving us some Santorini vibes!
With that, we have come to the end of our housewarming tour and we can't wait to share more tips and tricks for this home journey!
Signing off with love,
Housemaets