Our 5-room flat in Tampines North is designed with a dark minimalist luxury theme, deviating from the typical HDB look. Over 3 months and with a $70K budget, we transformed our 1,216 sqft home into an elegant and moody space.
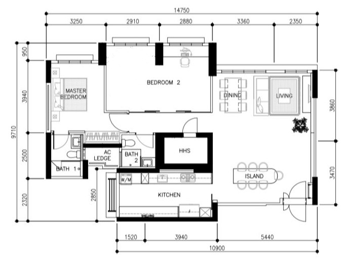
Floor Plan - After
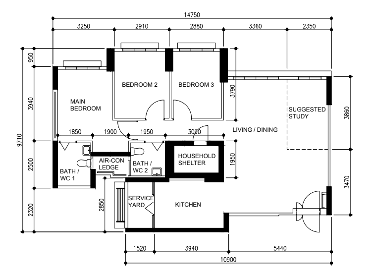
We made our boldest decisions by removing the service yard and combining two rooms to create one large space. These choices have defined the unique style of our home.
A living room that entertains day to night.
As you enter our home, the expansive living and dining area greets you with sleek black and grey tones. The space features a grey couch, stone-like vinyl floors, a black TV console, and a striking black feature wall with a stone finish. Warm accents like LED cove lighting, golden marble-topped side tables, and the dining table’s golden legs add a luxe touch.
Our sofa’s adjustable headrests ensure an unobstructed view of the TV from the dining table. The Brazilian-imported granite dining table is perfect for entertaining, reflecting ceiling lights in the evening for a warm glow.
Floor-to-ceiling curtains enhance the room’s height and offer both sheer and blackout options, allowing us to control the light and manage overly bright days.
Custom Sintered Stone Island.
Opposite the living area, our kitchen island, although not in the kitchen, is a centerpiece of the living room. This piece features a white and gold sintered stone countertop on a charcoal laminate base. It boasts a rounded fluted edge on one end and a niche for a wine fridge on the other. Golden trimmings on the baseboard and a chic pendant lamp add an elegant touch.
It not only enhances the room’s aesthetics but also offers a practical spot to place items as soon as we enter.
The kitchen reflects our dark minimalist luxury theme, featuring grey countertops and dark wooden cabinets arranged in a galley layout. To avoid a cramped feel, we minimized top-hung cabinets.
Attention to detail ensures the kitchen is both beautiful and functional. A glass door can close off the space to contain cooking odors and smoke. A soft-closing system prevents slams, which is particularly handy with our two British Shorthair kittens. Subtle LED lights provide a warm glow, a water dispenser by the fridge ensures easy hydration, and custom carpentry hides the flat’s pipes while offering additional storage.
While many homeowners might overlook the corridor, we transformed ours into a standout feature.
This upgrade achieves three goals: concealing air conditioning pipes, hiding an awkward ceiling beam, and updating the bomb shelter’s ventilation hole.
A false ceiling conceals the beam and air conditioning trunking, adding a modern touch.
Glass sliding doors replace the walls of the two common bedrooms, visually enlarging the space while sheer curtains maintain privacy.
At the end of the walkway, a hidden door leads to the master bedroom.
We transformed our common bathroom into a sleek, minimalist space. Instead of acrylic panels, we chose a box-up design with integrated downlights, creating a seamless look.
By omitting a full shower screen and door, we increased flexibility, making it easier to clean larger items and bathe our cats. Large format tiles add a modern luxe feel and simplify cleaning with fewer grout lines.
We opted for an innovative egg-shaped toilet rather than a wall-hung one for cost reasons, adding a touch of luxury. Sleek blinds cover the default HDB windows, ensuring a clean finish.
In our master bedroom, we’ve employed hidden doors to achieve a seamless look.
The entrance to the master bedroom is discreet, and the doors to the master bathroom are also designed to blend seamlessly into the surrounding carpentry.
This clever design creates the illusion that the bathroom is not adjacent to the sleeping area (a nod to feng shui), ensuring a more cohesive and uninterrupted aesthetic.
In our master bathroom, we opted for a sleek, minimalist design similar to our common bathroom, featuring a box-up design with integrated downlights.
A distinct wet and dry area, separated by a shower screen and door, adds functionality. A full-length mirror amplifies the space, while a fluted ventilation panel covers the fan.
Large format tiles contribute to a modern luxe feel and ensure easy maintenance. We chose an egg-shaped toilet for its luxurious appearance over a wall-hung one. Lighter tiles in the shower area create a modern contrast and simplify cleaning, while an installed niche keeps the space uncluttered.