Hello everyone! Welcome to @deshaohaus where we document our house journey and the idea behind our cosy abode. The main theme of our house was scandi but it turned to be more rustic-minimalist with darker oak brown and white. Our home focuses more on functionality and practicality while keeping its aesthetes.
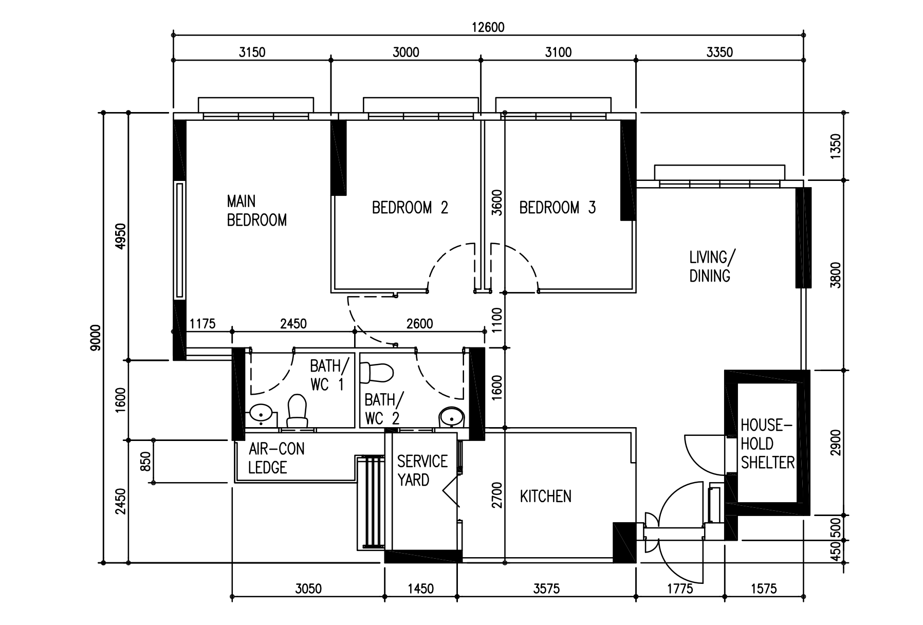
Let's take a look at our floor plan. It's a 93sqm, 4 room resale flat located in the North-East of Singapore. We got drawn to this house because of the squarish layout as well as the flexibility to create an open kitchen, which we will elaborate in future posts.
Welcome in! When you first enter, you will be greeted by the Muji bench where we can sit and put on our shoes. It also acts as an additional seating area when guests come over. We have a built in mirror by the door so we can check our OOTD before leaving the home. Our bomb shelter is concealed on the left alongside a hidden shoe cabinet.
One of our best reno decision was to change our living room layout. We were inspired by a fellow homeowner and decided to put our sofa against the window instead of the usual layout. We are in love with this transformation! We will share more about this in future posts!
Another reno decision we had NO regrets of was to create a larger living space. In order to do that, we made the decision to hack one of the bedrooms and converted it into a mini study room. The extra space could then be used as additional walking space/ a bigger living room!
Having an open kitchen was one of my MUST-HAVES. And thankfully the layout of the house allowed for that. We hacked the walls and created an open concept kitchen. This makes the house bigger and a more seamless design.
This is the closer look into our kitchen. Love the kitchen backsplash we chose and it has become a very distinct piece of the house. There is plenty of storage space as well as open shelves to display all our items and decor.
This is our cosy bedroom. Having a platform bed was something we both wanted and we're glad it could be achieved. We only hang out here during bed hours so we kept the design really simple YET COSY.
This is our master bedroom toilet. We chose darker tiles to go for a more sophisticated and relaxing look. Not forgetting the LED orange cove lighting which sets a romantic and calm mood.
We hope you enjoyed the quick house tour of @deshaohaus! Our home is still a work in progress and always adding new touch and element to it. Can't wait to bring you along on this ride!
In the meantime, you may follow @deshaohaus on Instagram to get the latest deets! Till then!