Hi everyone, welcome to our housewarming!
Uchi Onigiri is a 5-Room BTO home nestled in Tengah! As both of us practice Kendo, a modern Japanese martial art.
Therefore, we wanted our home to be a Japan-inspired theme, giving a Zen and calmness atmosphere, incorporates with wood and neutral colors.
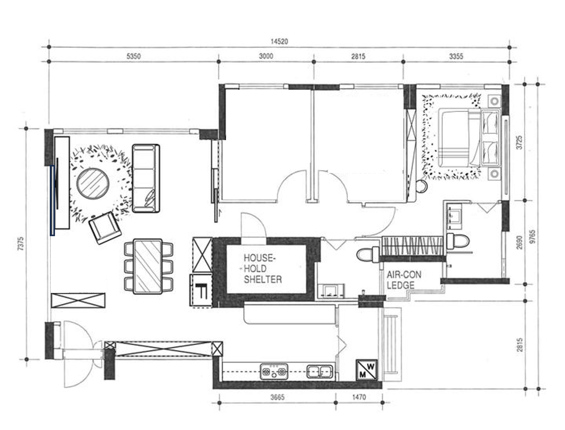
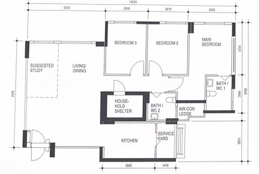
Before we dive into the our home tour, here’s the original floor plan of our unit which we remain unchanged. The unit came with Optional Component Scheme.
Having a clear vision of how our home to be like, we created a mood board and list of requirements, which our ID R Interior Design Studio (@sg_rinterior) combine all of it into reality.
Our renovation fee was around 40k, focusing most of the renovation effort at the living room and kitchen. Leaving both bedroom 2 and 3 untouched.
We created a full height cabinet with settee beside our entryway displaying few of our swords. The settee allow our guest and us to sit and chill or prepare to head out!
Aligning with the settee, is our dry pantry and dining area! Where we also decided to have the fridge located together with the dry pantry instead of the typical layout in the kitchen.
This cater to our needs and daily lifestyle and accommodate gatherings with friends!
Moving into our master bedroom, we wanted it to be soft and simple. Away from the heavy use of carpentry in the living room. We mainly using white and tiny bit of wood & grey creating a cozy ambience.
This is our master bathroom, keeping it relatively simple. We decided to keep the HDB tiles, giving it a natural accent.
I think that’s for now! We hope you enjoy the house tour! Can’t wait to share more about our home! Thank you for reading!
Thankful for the wonderful photos by Doubleshot studio
@doubleshotstudios & @ahkiam