Hello! This is TheKohNest and we have moved in to our nest since February 2023. This is a 5 room resale BTO at 1216 square feet. In terms of designing the house, we did not have any specific theme in mind. It was constructed after throwing tons of photos to our ID and it was eventually named as texturised minimalist by our ID.
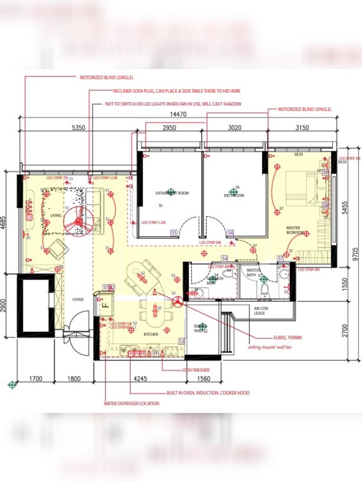
The layout of the house is largely in tact except for 1 minor adjustment which we shifted the master bathroom door to the center in order to have a longer vanity counter.
In the entryway, we have built a full height carpentry to conceal the bomb shelter and at the same time, create more storage spaces to put our household essential items and shoes. In addition, we have chosen to laminate the main door as to achieve a consistent color palette throughout the entire house.
Many prefer loose furniture nowadays, we have decided to go for fixed feature wall and console. It allows us to create a more uniform and consistent design throughout the entire house. Curves were also incorporated to soften the design and to prevent any injury since I have a wild toddler roaming around the house.
As for the kitchen, we went for sintered stone countertop and backsplash to create a consistent look and easy maintenance. We bite the bullet and invested on a better quality tap as we have encountered leaking in the taps we have used in our previous home.
Here comes the statement piece of our home. We have a built-in dining space and island that was designed in an irregular shape. As this is a permanent fixture, we are unable to replace it as and when we like but yea, aesthetically over practicality. Haha.
Moving to our common bathroom, we have went for a warmer tone palette. It is a simple and functional bathroom. Top mount basin was chosen as we feel it is easier to maintain despite many say otherwise.
Lastly, we have laid Kit Kat tiles for our master bathroom and was constantly nagged by the tiler. Despite an awful lot of grout lines to clean, we are going ahead with it.