Welcome to our open concept kids friendly home! Open concept homes are usually not associated to be kids friendly, but we believe the changes that we have made to the house has helped us function better as a family unit.
We have two young kids aged 3 and 6 years old, and with their changing needs we have designed the home to last us through the years as this will be our forever home - or at least until the kids are grown up!
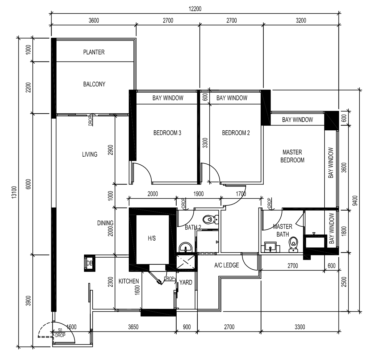
Let's start off with the original floor plan! We found the original layout quite restrictive and one of first things we wanted to do was to hack down the kitchen walls to create an open concept kitchen. This would not only open up the home to make it look bigger, but also make it able to keep an eye on the kids while cooking.
Another major change we did was to change the door orientation of our master bathroom to face the wardrobe, creating like a walk in wardrobe concept.
After deciding on the changes to be made to the home layout, we created a moodboard for the different parts of the house (tiles, carpentry, lights etc) and referred back whenever we needed to make decisions and were in doubt.
For the colours wise in our home, we selected a calming green hue for the living room (which we also used for our son's room) and a nude shade for my daughter's room and master bedroom.
Light oak wood and gold hardware were chosen to complement the overall look for the house to create a calm and homely environment.
Most of the carpentry are in white to create a more timeless design, but we also chose a more neutral shade of green for our kitchen and master bedroom carpentry for a pop of colour.
And this is how our eventual design concept turned out! Essentially a snapshot of all the colours you would see in our home. This is also probably our favourite view of our open concept kitchen leading seamlessly to the dining room.
To hack the kitchen walls, we had to get a professional engineer to ensure that the structural integrity of our flat will not be compromised. We also had to factor in additional cost of rewiring the entire house as one of the pillar housed the original DB box.
Creating an open concept kitchen definitely came with a price tag, but it was worth it as the kitchen no longer felt claustrophobic. More importantly, we could have a birds eye view of what was going on in the kids playroom while being in the kitchen.
We designed the kitchen to be kids friendly where they are able to access one of the pull out drawers to take their own utensils during meal times.
All sharp objects are kept well out of their reach, but at the same time we do involve the kids in easy meal preps and use that time to educate the kids on kitchen safety.
We designed the kitchen to be kids friendly where they are able to access one of the pull out drawers to take their own utensils during meal times, ensuring that any sharp objects are kept well out of their reach.
Our living room is where the family spend the most time in together. Aside from the built in carpentry for more storage space, the rest are loose furniture which we can easily switch around with the changing needs of the kids.
Fun fact - the play area is probably in its fourth edition as we have many several layout changes along its way!
Here's a sneak into how we keep our kids toys organized! We love the Akyasa crates which helps to sort out the different toys. The kids are able to keep the toys easily back into its respective boxes when done.
Having an open concept house where the kitchen and dining area are well integrated together also meant I could be more flexible with the layout. I created a dry pantry area which sits in front of the dining table, where I can make a daily cup of coffee easily and sit at the dining table to enjoy it within a couple of steps!
The kids are able to access and choose their "approved" snacks in the lower drawer easily, and this also helps them with their independence.
For both kids room, we opted for a half wall paint job on one side, and pasted a wall decal. It is significantly cheaper than getting a wallpaper, and definitely leaves us with more flexibility to change up the room as she grows older.
For both kids room, the only carpentry we did were the cupboards. We made sure it was able to last through their growing years with adjustable tracks, and kept the design neutral and timeless.
Similar to my elder daughter's room, my younger son's room also has a half painted wall with vinyl decal. The colour of the wall is also painted in the same shade as our living room.
Although the kids spend most of their time playing together in the play room, they do have their own space to wind down before bedtime. My son is still young and does not need a study table, so we created a cosy corner for him where he can wind down with books and his favourite toys.
The kids share a common toilet and we designed the toilet to be timeless and gender neutral. The colours chosen in the home are also taken from shades around the home to keep to the overarching design.
As mentioned before, one of the challenges in the house were the bay windows leading to inefficient layouts. For the master bedroom, we built a platform bed which covered the two bay windows to maximise space.
The platform bed also comes with ample storage space which we use to store bulky items like luggages which we do not usually require.
Another major work we did was to shift the toilet door from the original entrance to lead to our wardrobe area. This helped to create a more seamless flow of retrieving our clothes. It gives the illusion of a walk in wardrobe, or so we like to tell ourselves!
We enjoy dressing our home up through the different festivities and have come to appreciate the rather neutral palette of our home which allows us to do so!
Would encourage all new home owners to start off with a moodboard to get a sense of the design they prefer and create their ideal dream home from there. It is important to also consider the family's needs and design from there to maximize space efficiency.
And that brings us to the end of our home tour, meanwhile feel free to connect with us at our IG @thedeeshive!