Hi there! Welcome to the virtual house tour of @haositgoying, the humble abode of a young couple in our late 20’s.
We were very blessed to have gotten our flat through SBF and #1 as our queue number. We managed to score a 5 room BTO in the North-East and collected our keys in just 7 months.
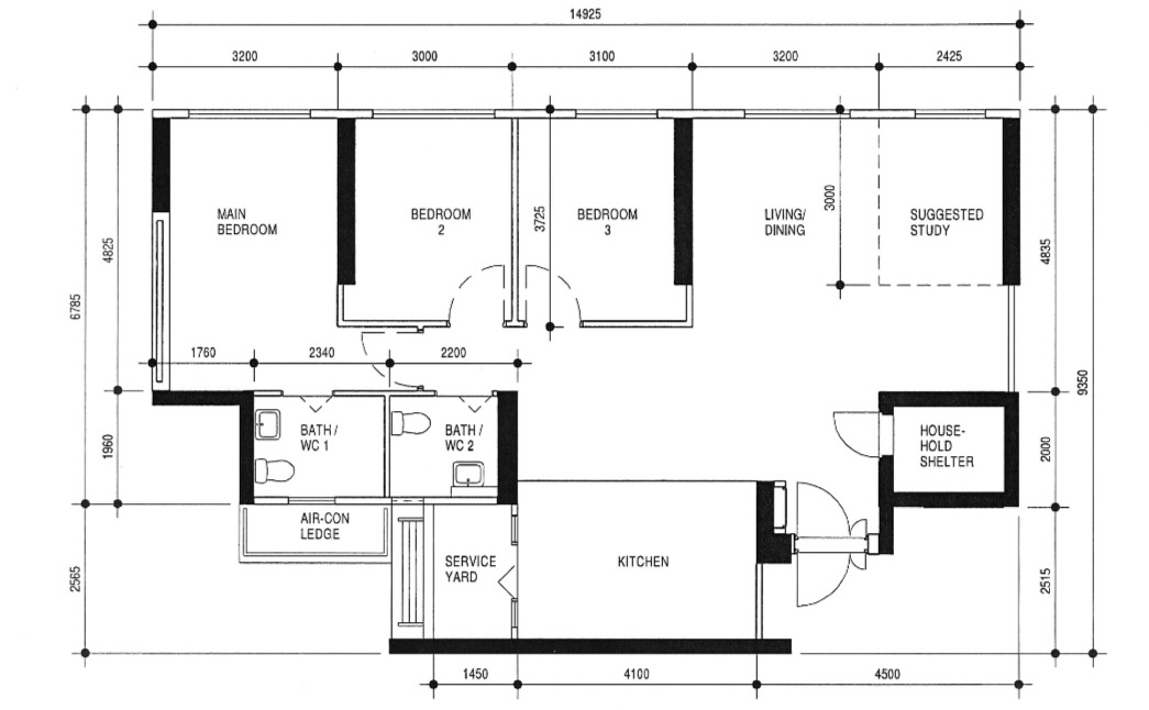
We live in a cozy 5-room BTO in Punggol, and it’s approximately 113 square meters. Our house style was initially veered towards mid-century modern (hence the darker wood colours), but it was love at first sight for the Mrs with our current flooring that landed us in the modern-minimalist category instead 🤣
Special thanks to The Local Innterior for the great work done as well as the stunning photos!
While we hacked the bedroom walls and slightly redesigned the configuration, the floor plan remained largely unchanged.
A summary of the changes we made:
* Pushed back the bedroom walls
* Sealed up the original entryway to our MBR
* Hacked and sealed up one of the window panes in the service yard
The original entryway was lengthened by creating an extension of the structural wall which housed the DB Box. This wall wraps around our full length cabinet, which we have divided into general and shoe storage sections.
As you enter, you’re welcomed by the living room. We initially had a niche in the TV feature wall, but we added a partition wall with wood support to create a uniform look, allowing us to center the TV.
The open layout makes it easy to transition from the living room to the dining area and kitchen. Along with the use of same vinyl flooring throughout, it creates a sense of continuity.
The kitchen is split into wet and dry areas, with the island demarcating the separate areas. In the dry pantry, we display some of our collectibles and sentimental items. We kept open shelving minimal for a cleaner look and to reduce dust collection.
We chose sintered stone for our countertops and extended it to the backsplash for a seamless appearance. We also sourced for a sintered stone dining table top from Taobao, which has been a fantastic choice for its low maintenance and high heat resistance.
The bedrooms branch off from the common area, making it feel cozy yet connected. We were left with only two bedroom doors in the house, so we decided to splurge on them — and we have no regrets!
As we only realised there was a structural beam after hacking the walls, our ID suggested adding a strip of LED to light up the walkway instead. This beam was also further lowered to help conceal our aircon piping. We feel the light helps to add some visual interest!
By sealing off the original master bedroom entryway, we were able to build a 2.9m full-length wardrobe (excluding the vanity and master bathroom entrance) without compromising space in the master bedroom.
As first-time homeowners, we did lots of research but ultimately were clear on the style we wanted - bright & uncluttered with a mix of wood and cream colours. We feel the minimal colour palette helps to make the house look cleaner.
For new homeowners, our biggest tip is to focus on lighting. The way light interacts with your space can completely change the mood, so take the time to choose the right lighting fixtures. All our lights were purchased from Shiok Lighting!
Thanks for reading till the end! Hope you love reading about our space as much as we enjoyed curating it. :)