We got our home through the BTO exercise, so we didn’t have much flexibility in choosing the finer details. However, there were a few non-negotiables for us:
Location in the East
We both grew up in the east, hence this was a non-negotiable for us!
A 5-room Unit
Space was a priority, especially since we have two cats who love to explore. We wanted a large living area where they could run around freely, and a bit of extra room to accommodate our future needs.
A fully open kitchen
We’re all about open spaces, and a fully open kitchen was an essential for us. It makes the whole place feel bigger and more connected, perfect for hosting friends and family.
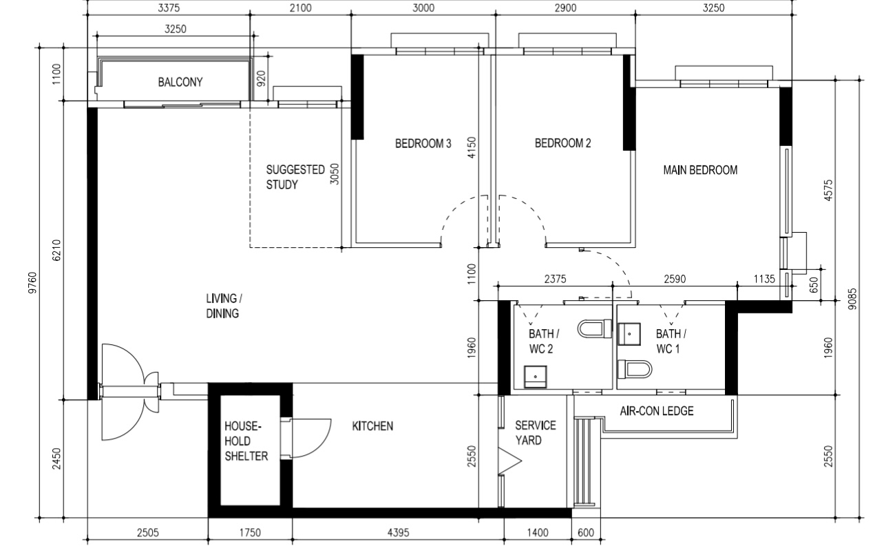
Here's our floor plan for reference:
Of course, everyone has their own unique requirements, so no two house-hunting journeys are the same. What worked for us may be different for you, but that’s what makes finding your dream home so special. Good luck on your own journey! 🏡✨
If you have any questions, feel free to chat with us on IG @buttercreme.home :)