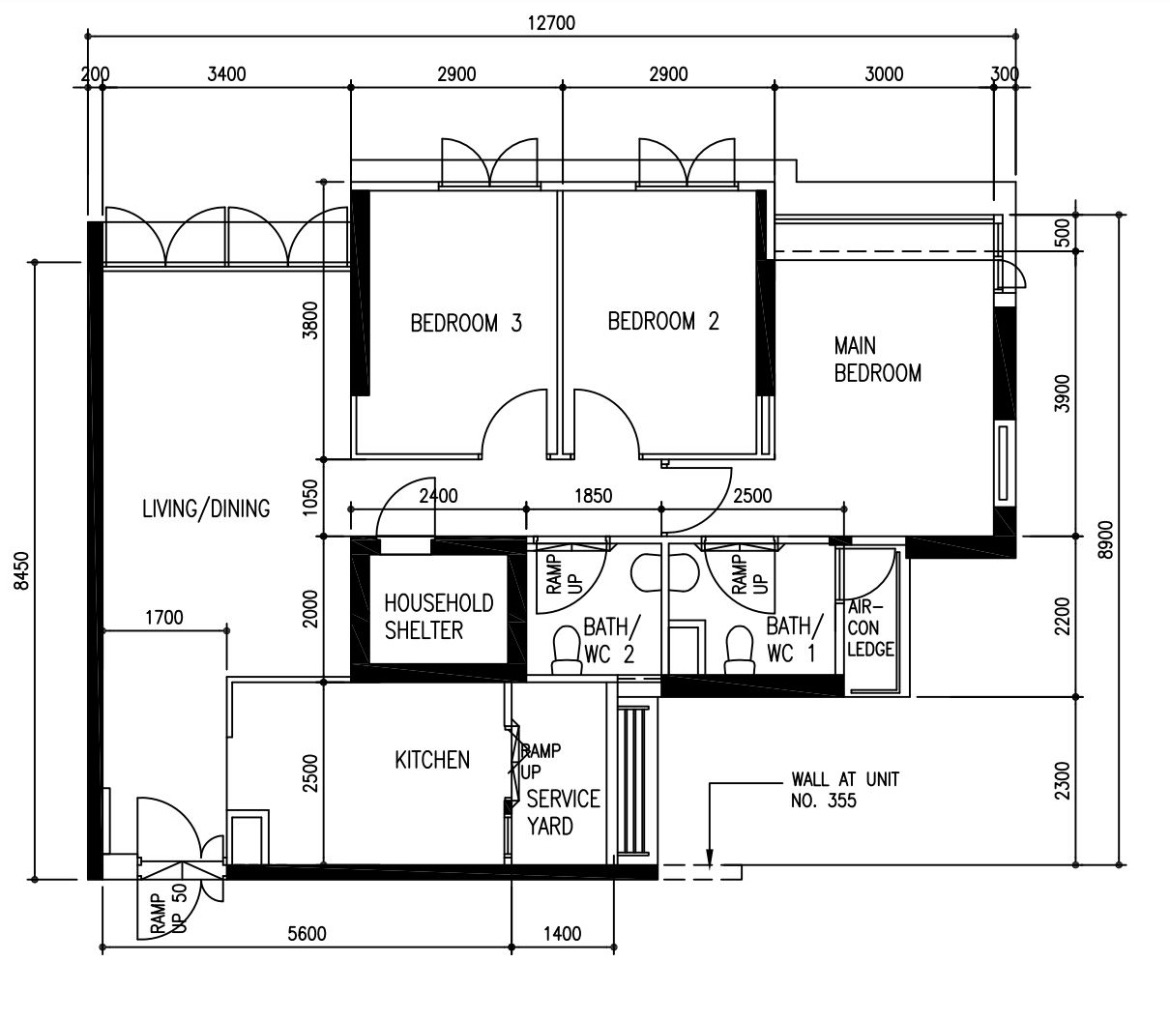
Let’s start with the floor plan of our home! Our house is about 92sqm. We bought this resale flat back in 2023.
We didn’t do much hacking except for the kitchen, toilets for hygiene purposes. Other than that, we knock down half a wall near the kitchen/ dining area.
Stay tune for more posts