Welcome to 77shome! This is a 4-room resale flat in North-East area and we received our keys sometime in early June 2023. Our renovation took approximately 1-1.5 months and we moved in on 8 August 2023.
We had viewed over 20+ houses and knew this was the one, mainly because of how well-maintained the flat was and more importantly, of the location and bonus point: the price was within our budget.
It is located within 5 mins walk from the MRT and tons of eateries and major supermarkets nearby, which presents itself as a huge convenience to us.
We did not engage an ID, and as the title speaks for itself, we preserved most of the built-ins from previous owners as the colours and design were align with our preferences and they were kept in pristine condition. We also had a general direction of how we wanted to enhance on existing design, which was to turn it into mid-century modern style. The whole idea is to emphasise function > form. Colour theme-wise, you would mainly see whites, woods and blacks.
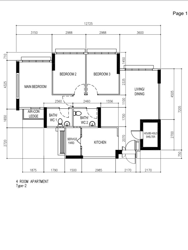
This is the floorplan of our home. We did not make drastic changes to the house layout. The position of the second room door was shifted to be part of the master bedroom so that we can have a walk-in wardrobe concept. In addition, we hacked down one of the kitchen walls to create an open kitchen concept.
Welcome in! This is our entryway. The previous owners built a feature wall with storage space to hide the bomb shelter and DB box. The bomb shelter is well-concealed with a tic-tac mechanism door. The cabinets here are mainly storage space for our shoes, wifi and other miscellaneous items.
After our first month of moving in, we decided to elevate our home’s ambiance by adding a few more home decoration items such as a full-length mirror, faux olive plant to add a touch of nature and a display shelf. Reading on, you will realise that almost 90% of our furnishings and decoration items are from Taobao.
Here’s our living area! Our sofa is from Prestige Affairs and the rest of the items from Taobao. It is a relatively simple set up with loose furniture and we did not have any built-ins in the living area. We decided to do away with coffee table to free up floor space and instead, got a C-shape convertible table.
As you can see, we do not have a TV in our living room too! We do not watch TV and feel that it would be very under-utilised to get one, but we might get a projector in the future 😊 We got a TV console to serve as storage space and conceal unsightly wifi router and other wires.
We opted for open kitchen concept by hacking away the walls to allow more light into the kitchen, and also to increase countertop space. We did not incorporate a lot of structural curves in our home, and to soften the overall look, we got an arch dining table.
We have a room set up for husband's work-from-home needs, and it is kept empty for now except for a study desk and monitor. This allows for flexibility to convert the room for other purposes in the future.
There are also no built-in furniture in the study room, equipped with only loose furnitures.
Next, we have a common room with built-in wardrobes handed down from previous owners. It is kept in good condition with ample storage space for both of us.
The original position of the door was at the wardrobe area. The original door was removed and a partition was built to close off that area. The new door position was shifted to the right as a wooden sliding door. This allows the common room to be "attached" to the master bedroom as semi walk-in wardrobe.
Our master bedroom is kept simple with no built-ins. This space is reserved for peaceful slumber, hence we kept it as simple as we could.
We have a dresser table at the side for the wife for her skincare and makeup needs. This also acts as additional storage space.
An overall look of the bedroom, furnished with loose furniture. We also have a bedside table for easy access to place our phones and other small items.
We use only bamboo bedsheets as they are soft and cooling, perfect for Singapore's weather.
We overlayed just this part of the wall as it was originally in blue tiles (from HDB) and we did not feel that the original blue HDB tiles fit into the overall look.
Here's a look at the master bathroom! We got a rainshower installed at the master bathroom to enjoy a relaxing bath after a long day at work. We chose chrome bathroom accessories for practicality purposes.
At the shower area, we overlayed the wall tiles as it was originally in blue tiles (from HDB), similar to common bathroom.
On this side, we preserved the vanity cabinet and long mirror installed by the previous owners. Similar to common bathroom, we kept the rest of the HDB tiles as well.
Follow us as we share more about our home renovation and home living journey in the North-East area :)