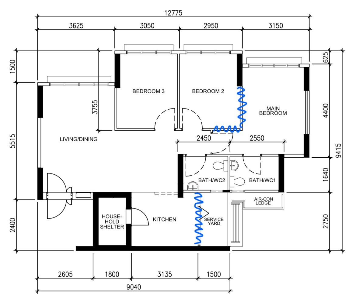
Our home is a 4-room BTO unit that we bought just as it reached its Minimum Occupation Period. The original layout included hacked service yard walls and the removal of the wall between the Main Bedroom and Bedroom 2 (as indicated by the blue lines). For our renovation, we allocated a significant portion of the budget to high-traffic areas such as the kitchen, bathrooms, and living room, while keeping changes in the bedrooms to a minimum. We also chose to retain many of the existing tiles and some of the original carpentry.
Initially, we envisioned a wabi-sabi theme, focusing on serenity and beauty in imperfections through organic shapes and rustic materials. However, after scrolling through countless Pinterest moodboards and posts, we found ourselves enchanted by the timeless appeal of mid-century modern design. With a clear style in mind, we hired a contractor to execute our renovation plans and bring our vision to life!
As you enter the home, you’ll encounter a full-height carpentry partition at the foyer, complete with an arch cutout. This design serves as a privacy screen that allows light to pass through and provides natural ventilation.
Our home showcases a colour palette of black, brown, and white, with occasional pops of colour, and this living room beyond the foyer vividly captures that style. We have chosen furnitures that are low in height and have installed curtain rods on the ceiling instead of the curtain pelmet to give an illusion of a higher ceiling. Most walls and ceiling are also covered in limewash paint to give a gentle and organic feel to the space.
To maintain a sleek and uncluttered appearance on our walls, we opted for an ultra-short throw projector rather than a traditional TV. This choice allows us to enjoy a large screen experience without the bulk and distraction of a mounted television, preserving the clean lines and minimalist aesthetic of our space.
With an open layout, the living, dining, and kitchen areas seamlessly integrate into a cohesive space. Adjacent to the living room, the dining area includes a built-in settee that not only provides comfortable seating but also offers ample storage space.
The design of our home centers around the kitchen, reflecting our shared passion for cooking and baking—he enjoys crafting savory dishes, while she loves baking. To accommodate these culinary interests, we prioritized ample countertop space, which is crucial for both food preparation and baking.
We extended the kitchen into the service yard and dining area, creating a spacious and functional environment that fosters a smooth flow between the kitchen and the rest of the home.
Two bathrooms different designs. The common bathroom was an opportunity for us to experiment with more adventurous design choices (thanks to Pinterest). This exploration resulted in the creation of our vibrant mosaic bathroom, which has quickly become a favourite among our guests. We felt confident taking this creative leap knowing that this space isn’t our forever home and that the common bathroom, with its lower daily usage compared to the master bathroom, would be manageable in terms of maintenance and cleaning. The master bathroom on the other hand exudes a more relaxed vibe.
The wall between the main bedroom and Bedroom 2 had been removed previously, but we decided to reinstate it. We realized that the expansive open space wasn’t necessary for our needs, and having separate sleeping and changing areas would make the space more functional. By rebuilding the wall, we optimized the layout to better suit our preferences and enhance the overall use of the space.
The changing room is still a work in progress, and we’ve chosen to keep the design simple with loose furniture. The built-in wardrobe was installed by the previous owners, providing a practical storage solution as we continue to refine the space.
The renovation process has been an enjoyable journey and will continue to be as we incorporate elements of our daily life into our home:)