Welcome to our cozy 4-room resale HDB ✨
We’ve embraced a soft, cream-toned palette to create a calm and modern home that reflects our little family’s life. With thoughtful styling, natural textures, and warm corners, every detail is designed to bring us joy every day.
Our entryway sets the tone of our home — clean, functional, and welcoming, with a custom shoe cabinet to keep everything neat. Due to space (and budget) considerations, we skipped the carpentry settee and opted for a simple Muji bench instead.
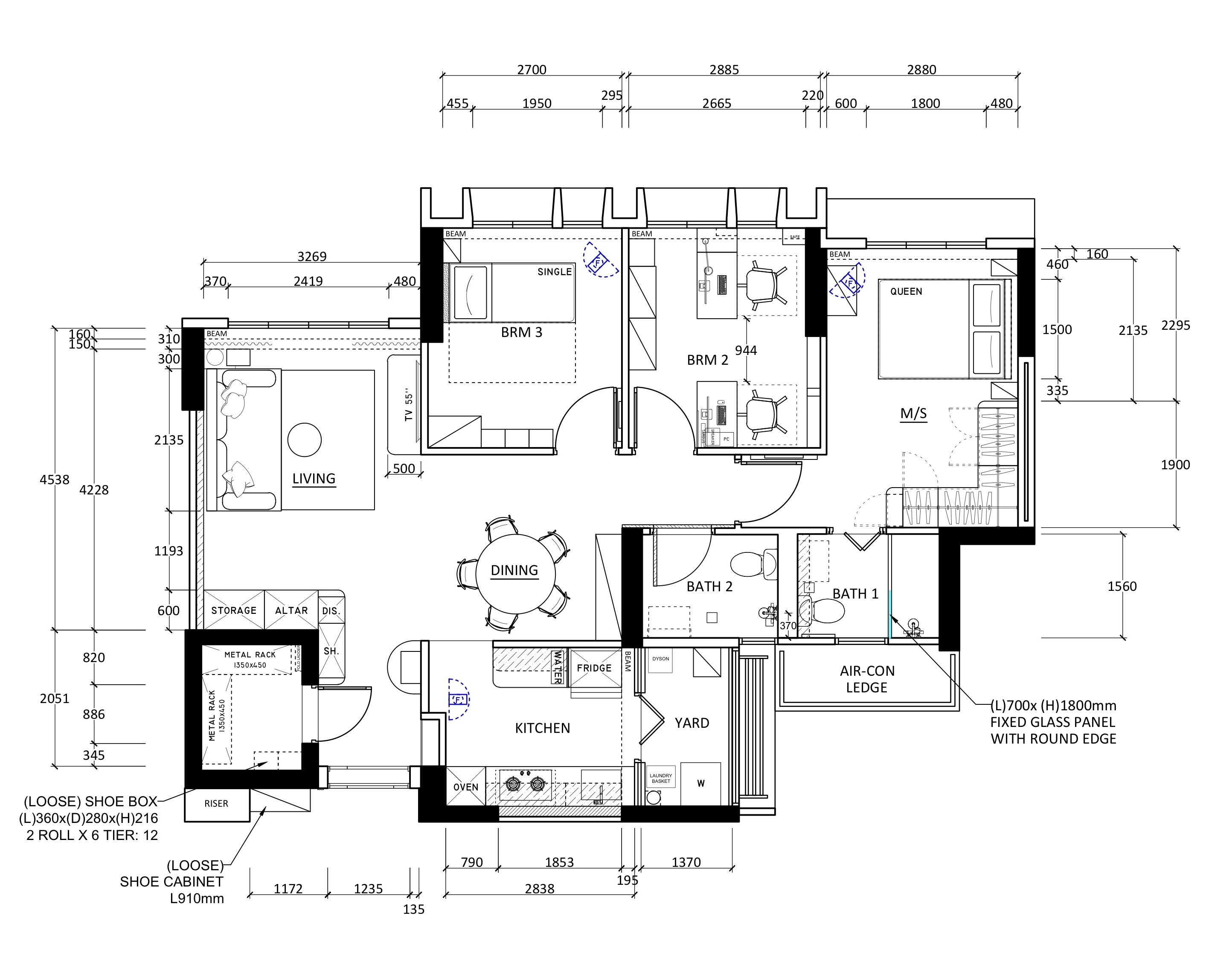
Before we continue the tour, here’s our 4-room resale HDB layout plan. To save cost and time, we decided not to do any hacking or tiling works. Instead, we focused on a few key upgrades — a false ceiling in the living and master bedroom, plus carpentry work for the living, kitchen, and master.
This way, you can better visualise how each space connects as we walk through our home.
Our living room is warm and inviting, designed with a 5ft TV console and a simple painted feature wall. We kept it minimal and practical — a balance of function, comfort, and modern simplicity.
Our 5ft TV console is designed with louvre panels for ventilation. Since we prefer not to expose our PS5, we keep it hidden inside — but thanks to the louvre design, it still gets proper airflow while in use.
A multi-functional cabinet that combines shoe storage with our altar, while also creating a display corner for our little collection — from Bearbricks and Avengers to Mickey and JJ Lin albums. A meaningful spot that reflects both our lifestyle and personality.
We chose a round dining table following advice from our Feng Shui master. The area is kept simple and neat, creating a cozy spot for family meals and gatherings.
We originally dreamed of an open-concept kitchen, but our Feng Shui master advised against it 😅 Instead, we created an “Open Door Concept” — connecting seamlessly with the dining and living areas.
This side of the kitchen countertop is mainly dedicated to food preparation. Since our kitchen is compact, we intentionally keep this area clear for practical use.
#SmallKitchenSolutions
Our master bedroom is simple, calm, and practical. The L-shaped wardrobe with dresser makes mornings effortless, keeping everything organized and within reach.
#HDBMasterBedroom
We retained most of the existing bathroom, only adding a mirror cabinet and a fixed glass panel with a kerb to separate the dry and wet areas — keeping it simple, functional, and timeless.
Following advice from our Feng Shui master, we turned the common bathroom door into a feature door. Since we were already updating it, we also replaced the original HDB bedroom doors to better match the new look.
Our guest room doubles as a sneaker room for my husband, while also ready with a pull-out bed for family who stay overnight.
✨ Budget Breakdown
We completed our home makeover on a budget, keeping everything functional and cozy. Here’s roughly how we spent:
• Renovation works: ~S$36K++
• Light fittings, appliances & small items: ~S$20K
• Furniture & bathroom fittings (from Malaysia): ~S$13K
💰 Total: ~S$70,500 (all-in)
It’s been a journey of balancing style, function, and budget — and we’re happy with the cozy, neutral, and practical home we’ve created for our little family.