Hello and welcome to our home!
We moved into this resale executive maisonette in November 2024 in the West (a month after our renovations were done), upgrading from our 3-room flat. It’s a space that represents both our journey and the vision we had for a home that feels like “us.” While we’re still taking our time to furnish and decorate, every corner is beginning to reflect our personality and values. Thus, we don’t have full views of our home yet, as only certain spaces are fully done and complete, but we hope to be able to share these soon!
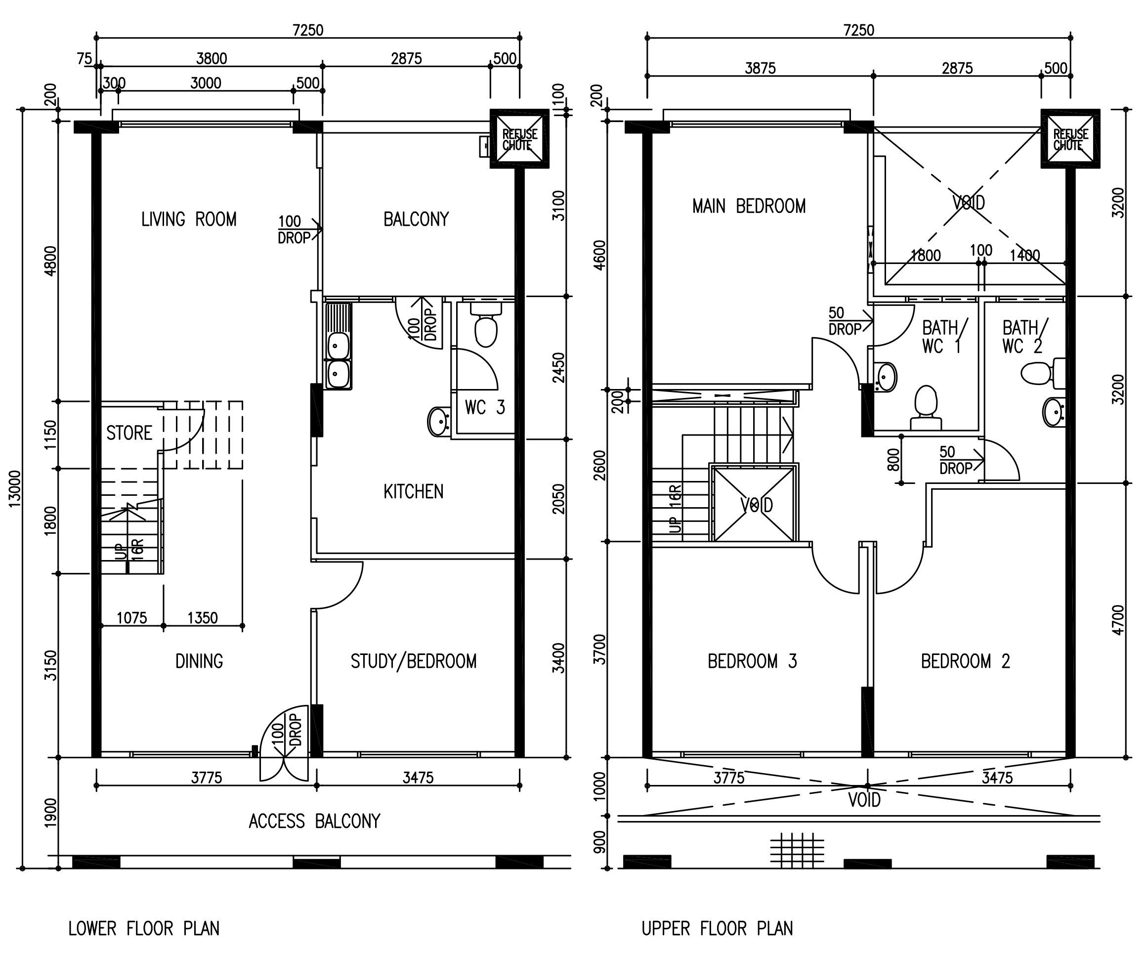
Let's start with the floor plan of our home! Our maisonette features a layout where the balcony is connected to the kitchen, and a study room on the first floor. We chose this layout over the alternative (which has the balcony attached to the living room and a smaller room in place of the study) because we wanted to convert the balcony into a dining area, and we needed a larger room where the study is. We’ll delve into the reasons for this later on!
● A Name with a Story ●
We affectionately call our home “2 Floors 11 Doors,” and yes, it’s literal—we really have 11 doors! A reel featuring all 11 doors is coming soon, so stay tuned for a fun walkthrough. The name feels even more serendipitous as our unit number is 211, perfectly tying together the floors (two), doors (eleven), and our home’s unique identity.
Our friends joke that our home gives the old saying “when one door closes, another one opens” a hilariously literal twist!
Our home’s interior style leans toward modern organic, with a soothing palette of neutrals and earthy tones. Some of our friends have pointed out that it seems like we’ve chosen colours to match our cat, Bucky. It wasn’t intentional, but we can’t unsee it now!
We also love greenery so much that we’ve added it not just to the main living areas, but also to the bathrooms and kitchen! While live plants aren’t an option due to our curious fur baby Bucky, faux plants help to bring that lush, natural vibe into every corner of the home. They add a touch of life and texture, creating a serene and inviting atmosphere without compromising on his safety. Even in spaces where live plants aren’t practical, we’ve found ways to infuse the calming energy of nature.
One of our inspirations came from the many beautiful Bali villas we've stayed in, where outdoor bathroom areas were surrounded by plants. We loved the concept so much that we brought it into our own home, even placing faux plants in our master and guest bathrooms to evoke that same tropical, spa-like ambiance.
Even in a functional space like the kitchen, we wanted to introduce a little greenery. Greenery has a way of making a space feel grounded, and we love how it adds a relaxed, natural vibe to our kitchen. Faux plants are a simple way to bring the outdoors inside, even in a place that’s often busy and functional. It not only brightens up the room but also brings a feeling of freshness that complements the natural tones we’ve chosen for the space.
● What We’ve Done: Renovation Non-Negotiables ●
We invested $150K in renovations (excluding electrical and air-conditioning) to transform this maisonette into our dream home. Key elements we prioritised during our renovation include arched doors, to add a touch of timeless elegance, and omitting T-joints (at bedroom doors’ entrances) as well as skirting for our vinyl flooring to maintain clean, uninterrupted lines. The latter was an absolute MUST for us!
We absolutely had to have an arched reeded glass door for our master bedroom – it was a non-negotiable for us, something we were determined to include no matter what!
We also chose to forgo the railing on the first flight of our stairs, creating a more visually open and spacious feel on the first floor. We also changed the door to the storeroom under the stairs to an arched one!
To enhance 'natural' light and airy vibes, we added a skylight at the top of the stairs, which was actually our biggest request to our ID. It wasn’t an easy feat and required several trial and errors to get it just right, but we are so grateful that he was able to turn this dream into a reality.
The skylight has become the main feature of our home, and when you look up from the first floor, it looks absolutely amazing, flooding the space with light. We installed a dual-switch system, allowing us to control it both downstairs and upstairs for convenience and ease of use.
Wherever possible, we incorporated organic lines and curves, from the flooring to the carpentry, to soften the overall aesthetic and create a harmonious flow throughout the home.
Both entrances to our kitchen, via the living room and balcony, are accentuated by a curved gold inlay strip. This design element not only visually separates the two spaces but also creates a seamless transition between the vinyl flooring and the kitchen tiles.
● A Home with Purpose ●
We made a few thoughtful changes to align our home with our needs and values. The study room was transformed into a musollah (prayer room) to accommodate both our family and guests—a decision that meant keeping the kitchen size intact, but one that was deeply important to us.
Most owners of EMs would hack the wall separating the kitchen and study to further enlarge the kitchen, but we opted to retain the wall as having a dedicated prayer room was our top priority. The #1 reason we opted for this unit was because the prayer direction was perfect (straight facing the windows) which made it easier for us to plan the layout of the room.
We hacked the wall to open up the entrance to the study room and installed a glass sliding door. This not only allows us to keep the room accessible when not in use, but it also helps to further enlarge the space on Level 1, making it feel more spacious and airy.
We also reimagined the balcony as our dining area, opting for a cozy and unique setup instead of using the designated dining space at the entrance. The balcony, with its full height windows, offers a breathtaking, unblocked panoramic view of lush greenery—a perfect backdrop for both morning and evening meals.
We also chose to convert the balcony into the dining area because it adjoins the living room, creating a seamless entertainment space for guests. This layout allows for easy mingling and communication between the two spaces, and guests in the balcony area can still view the TV in the living room. The original floor plan had the dining area separated near the entrance, which felt too disconnected from the main living space—a layout we wanted to avoid.
It also made more sense to use the balcony as the dining room as it is also adjoined to the kitchen, so we can conveniently transport food from stove straight to the table!
This cozy spot also houses our coffee and tea station, making it a perfect addition to the dining area, where we can prepare coffee or tea for our guests when entertaining, or simply enjoy a relaxing moment after meals.
We also made sure to design our home with Bucky in mind. In the kitchen, we created a dedicated nook and feeding station just for him. This thoughtful addition keeps his food bowl and automatic kibbles dispenser, as well as food and treats, organised and out of the way, unlike our previous home where they were left out on the open floor, causing us to accidentally bump into them. Now, Bucky has his own space, making our home more functional and pet-friendly!
We transformed the third common bedroom into a walk-in wardrobe. Or perhaps it should be called a walk-across wardrobe instead, heh! We did consider taking the two common rooms as they are next to each other, so we can hack the wall in between and have a true WIW, but the view from the master bedroom was too good to pass up! So a walk-across wardrobe it is, but hey...we're okay with the set up!
But our PROUDEST decision of all is relocating the entrance of the common bathroom upstairs into the common bedroom, converting it into an ensuite. This clever modification allowed us to repurpose the original bathroom entrance nook into a laundry area—a practical choice that eliminates the need to carry laundry up and down the stairs.
To us, this made so much more sense than placing the washer / dryer in the kitchen or balcony area, since all rooms are upstairs. Laundry is so much more convenient now - clothes go straight into the wash tower and back into the rooms when done!
The kitchen, however, stole the spotlight as our first major focus—and it’s easily our favourite part of the house. We wanted to create a space that felt both inviting and luxurious, so we opted for warm, dark wood tones, selecting a rich walnut laminate for the carpentry. This choice creates a striking contrast against the neutral colours found throughout the rest of our home.
We opted for glass doors in the kitchen to keep cooking odours at bay while maintaining an open, airy feel and a seamless connection to the rest of the home. We chose arched wooden accents for the frames to tie in beautifully with the organic theme of the house, adding warmth and cohesion.
The deep, earthy hues of the walnut bring depth and warmth to the kitchen. It’s a decision that really anchors the room and gives it character, setting the kitchen apart as a key feature of our home.
Designed to be both aesthetic and functional, the kitchen features thoughtful details like a foot pull for the pull-out trash bin, offering hands-free convenience...
We also wanted an appliance garage to hide away all small appliances so the countertop will be kept clear and clutter free. Electrical sockets are added inside, and the appliance garage comes with pull-out drawers, so appliances can simply be pulled out and used where they are stored.
Another favourite feature of the kitchen is our large double bowl farmhouse sink, as well as the sink-side dish rack we opted for. From our previous home, we knew we absolutely hated the top hung dish rack because water would always trickle down our arm! With the sink side dish rack, it was also a breeze to empty the water tray.
But our most favourite part of the kitchen is the laser engraving of our home logo that we had done on our kitchen hood cover! It truly adds a personal and unique touch that we're incredibly proud of, and makes a nice conversation piece with our guests allowing us to share the story behind the name of our home!
● A Work in Progress ●
While our home is still evolving as we take our time hunting for the perfect furniture and decor pieces, it is beginning to take shape as the space we’ve always dreamed of.
The living room itself is still a work in progress, with exciting plans on the horizon. We’re eagerly awaiting the arrival of a curved, pet-friendly sofa at the end of this month, designed to match the home’s aesthetic while being practical for Bucky. We also need to finally get a TV for the living room!
In our bedroom, we’re adding a beautiful work desk under the arched windows—a piece with curved lines that aligns perfectly with our design theme. We’re excited to share this addition once it’s in place!
The entryway is another area we’re also currently refining. Plans include a tall standing mirror for that quick OOTD check before heading out, a soft floor rug to add warmth, and a touch of greenery with more plants to liven up the space.
We’re aiming to have everything completed by Hari Raya 2025, and we can’t wait to see our vision come to life!
Thank you for joining us on this journey, and we are excitedly looking forward to sharing more updates! ❤️