Hello! We are A + F from Ohhmyy.home!
Our home is a 5-room BTO (113sqm). We wanted to give our home a bright and airy ambiance while embracing the limited space that we have. We also aimed to create an environment where our four children, an energetic 3-year-old boy and three furry pets, could freely explore and play.
We would describe our home's theme as predominantly Modern Scandinavian. Given that we have a 3-year-old son, it was important for us to avoid any sharp corners. Since we preferred a softer look, curves and rounded corners were our best choice.
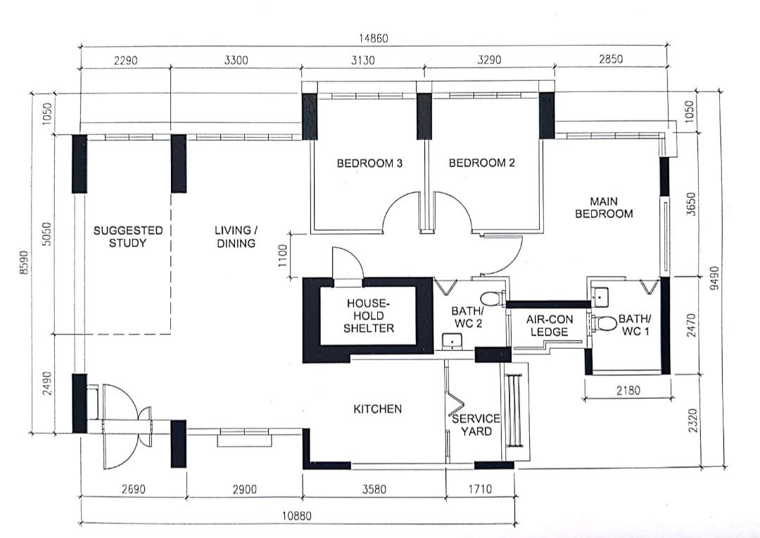
As you can see from our floorplan, our layout is somewhat limiting;
- Structural wall for bomb shelter couldn't be hacked to allow for an open concept kitchen
- Structural wall designated for study room couldn't be hacked for a bigger living room space
While we wanted a bigger space, we did not choose to make any major changes to the floor plan because of the possibility of our family growing. We did not want to sacrifice hacking any of the room’s walls in case we have more kids in the future.
Here are some sneak peek photos of our home! We will be sharing more on each spaces in the coming week.
Besides the arched beams, another unique feature of the home is definitely the bay window seats that connects the living and dining area. This was a perfect solution for us as we enjoyed having family and friends over.
As such, we could provide more seating for everyone. Plus, the look really tied in with the rest of our home.
Also because the bay window seating curves around the pillar, this arrangement was great as it formed the end seating for the table.
We will share more pictures of our dining area in the next post.
We decided to extend the kitchen cabinet out to the living room area as a dry pantry. This gave an impression of a bigger kitchen, and also gave us more countertop to work with.
We did not really do much work in the Common Bathroom aside from overlaying 1 part of the wall and the floor tiles. We bought the vanity cabinet off at a store instead of fabricating/customised our own.
Personally, I wish we could have overlaid the remaining walls as well but I will go in-dept in the next few post on this.
We kept things simple in our son's Bedroom for flexibility in the future once he grows up. Besides the animal decals and built-in wardrobe, everything else are loose furniture pieces that can be changed when the time comes.
Likewise, the work in our Master Bedroom was kept minimal. Our hands were tied in terms of the space of the wardrobe because of the structural beam. As such, we had to make some adjustments to the design of the wardrobe. Aside to that, everything else here are also loose furniture pieces so we can make changes if we ever get tired of the layout.
We overlaid all the walls and the floor with a glass panel segregating the wet and dry area.
//Side tracked//
Before receiving our keys, we reached out to potential IDs and contractors after checking on their website and social media pages, as well checking Qanvast and their corresponding Google reviews. We had a few criteria that we have laid out, so after the 2nd round of discussion, we were able to narrow down our prospects to a few of our requirements.
Connection was important for us as we needed someone that could connect with us on a certain level and are open to sharing ideas with. There was one instance when we felt the engagement with one of the IDs we reached out to felt a bit cold to use, and so we found it hard to envision them as someone we could bounce off ideas with.
If you guys are interested in getting to know more about how we chose our ID and what's important for us, do let us know and we will share in the next few posts.
We look forward to sharing this beautiful journey with all of you.