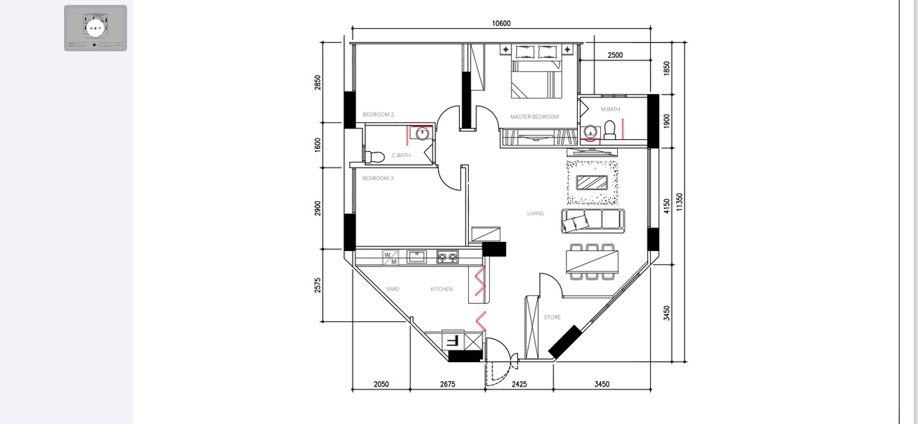
If you have been following us for a while, you might know that we have a pretty unique layout. There are diagonal walls in our kitchen and living room, and our master bedroom is almost the same size as all our other bedrooms
There are diagonal walls in our kitchen and living room, and our master bedroom is almost the same size as all our other bedrooms.
With the diagonals, we really needed proper planning in order to utilize the space well. We struggled quite a bit with the placement of the sink, stove, and fridge before finally landing on this layout.
As for our master bedroom, we really wanted to have enough storage + space for a TV. Given our compact bedroom, we had to go through multiple revisions to optimize the space.
These would not have been possible without the help of our ID who gave very thorough advice on usability and practicality.
I tend to get insaneeee decision paralysis, so having an ID helped to keep me on track!
We were leaning towards lighter wood laminates in our initial renders, but we eventually changed our minds. Before even meeting with our ID to discuss carpentry, I took it upon myself to explore different laminate options.
Big mistake—there were just too many similar shades, and it became overwhelming. But once we met our ID, it was a game-changer. He instantly understood the look we were aiming for and quickly narrowed it down to just a few shades, making the decision process much easier.
After living in for 10 months, we’re firm believers that hiring an ID was one of the best decisions we made. Our ID played a crucial role in making the carpentry in our bedroom both functional and practical. He advised on details like the width of the wardrobe doors, making sure they were easy to open and close without taking up too much space. Small but thoughtful touches, like creating a niche next to the vanity for extra storage, have made all the difference. It’s these smart design choices that make our space not just beautiful, but truly livable.