Welcome to Sirius Haus, a contemporary home conceptualised by a young couple.
Our guiding principles for spatial planning were "form follows function" and we employed various design techniques to "create the illusion of space."
We introduced rectilinear symmetry, clean lines, and a neutral colour palette. We experimented with LED lighting strips as a way to highlight feature spaces.
Fun fact - we only used 2 types of laminates for our entire apartment.
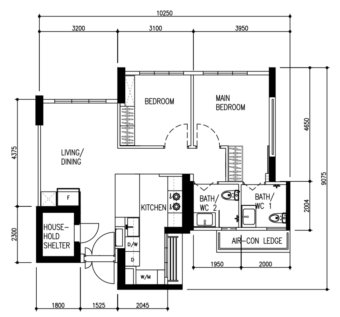
From our floor plan, you will notice that we have maintained the general integrity of our estate's typical 3-room BTO layout.
During our BTO unit selection, HDB gave us the option to opt for an open-concept kitchen layout, which we decided to accept. This decision was crucial as it resulted in minor hacking works during the renovation period.
Upon entering our house, our visitors are greeted by our framed 90cm x 90cm scarf on DIY wall-mounted acrylic. This artwork is located at the centre of our home, along the common walkway leading to the kitchen, bathroom, and bedrooms. It helps to create conversations between our house guests and in general quite aesthetic to look at.
We spent a lot of time deliberating about the living/dining space due to the space constraints. We eventually decided to ditch the typical HDB living room setting and skip having a coffee table and sofa set.
Instead, we filled up this space with an expandable 2m x 1.2m dining table that can comfortably sit between 4-10 people, as we plan to frequently host friends and family over.
We created a full-height pantry in our dining area, to house our refrigerator, microwave, and coffee area.
We also fitted a sleek Samsung The Frame TV on our dining room wall for a seamless look that could do away with the need for a TV console.
We opted for full-height wardrobe doors and a full-height mirror to create the illusion of a higher ceiling space. However, as you are aware the HDB ceiling height is on average around 2.6m.
We introduced a full-height LED mirror in the primary bedroom for a cozy yet spacious vibe. The original layout presented spatial and lighting challenges as the wardrobe area is deeply recessed from natural lighting.