Hello! Welcome to our self-designed home, where maximalism meets cosy family living. We invite you to explore our vibrant living room that blends various styles, peppered with some greens and my passion for preloved home decor and furniture.
A different angle of our living room where we love to unwind after a long day. This is my favorite spot in the house to listen to some tunes, read a book, or just chill with my family. As you can see, I have eclectic decor items and I like to mix and match different styles from vintage, traditional, modern, and everything in between, and love how each piece tells a story.
This big colourful painting is by a local artist and the turquoise foo dogs are almost 100 years old! I love how they contrast with the modern style of the painting and create a unique vibe.
A shelfie post ;)
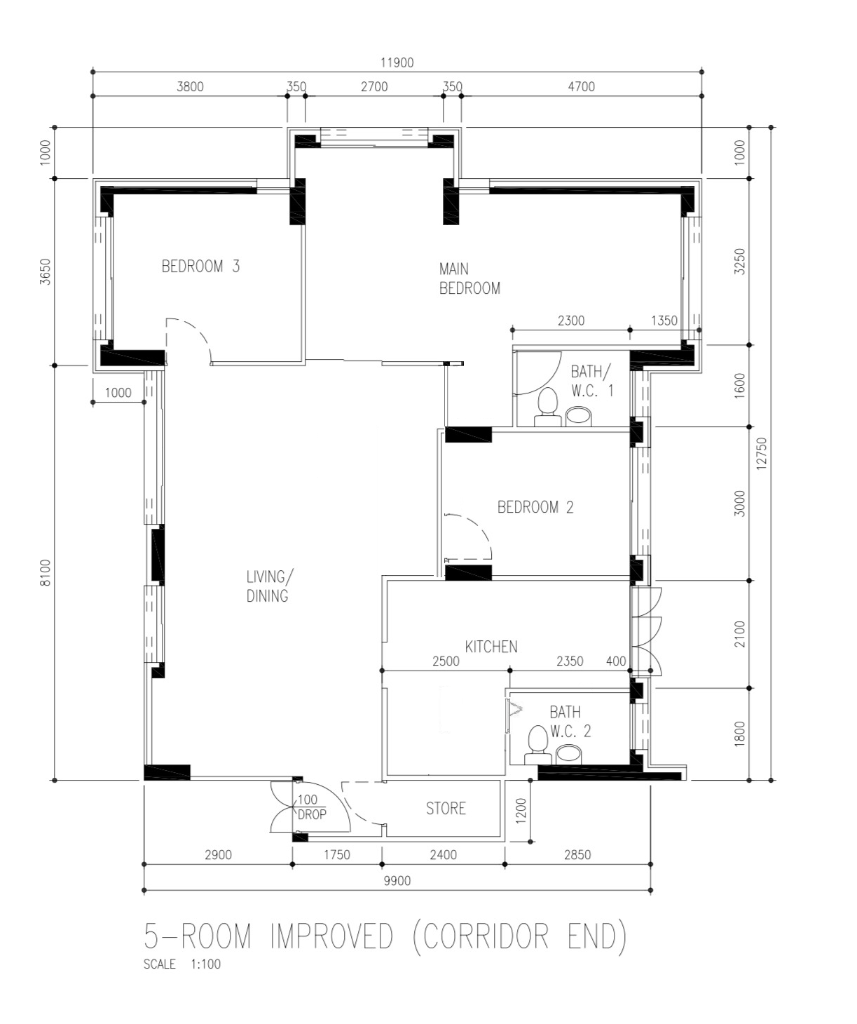
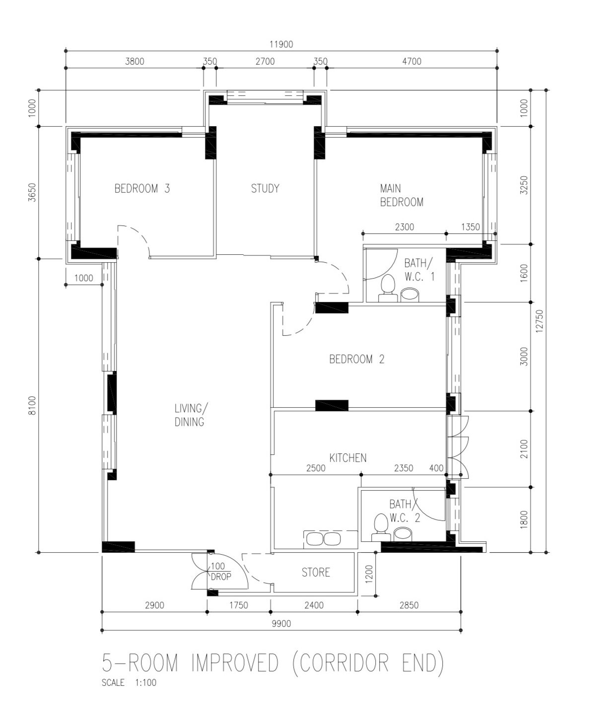
This is the floorplan of our house pre-renovation. Our house was still in original condition when we bought it which was great as we could design and customise it to our hearts' content. Scroll down to see the floorplan after renovation. PS: I used MS Paint to edit the floorplan (#terribleIDexperience) hence, it's not professionally done.
I wanted to make some spaces more spacious and practical, so I decided to knock down some walls and rearrange some rooms. Here's what we did:
- Moved the entrance of the common bathroom to the other side, so it's more accessible from the living room.
- Extended the dining room by pushing back the wall of the second common bedroom. This gave us more space to host guests and enjoy our meals.
- Combined the study room and the master bedroom into one big room.
We're really happy with how it turned out :)