Hello everyone, welcome to our crib!
Our space is a 5-room, corner resale unit in the east and the size of our house is 1475sqft. When we bought our flat back in 2023, it was around 28 years old. A fun fact about us is that the both of us are working in the same field - as a Medical Laboratory Technologist but at different hospitals.
As the both of us work shift, we want a house that was comfortable and cosy to come home to and rest. Hence, this house has a lot of woody tones.
Currently our house is still a work in progress so stay tuned for more updates!
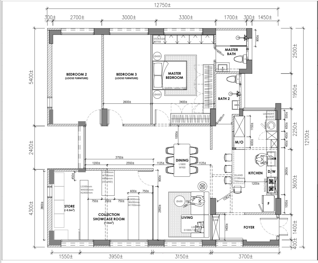
This was the original floorplan and there are actually a lot more work for us to do but something we love about this house is that it has a huge living room, a corner unit and it's the second highest floor.
We wanted a bigger living room so that Mr would be able to fulfil his dream/wish of having a toy museum in our very own house. Keep your eye out on our next few post for this!
This is the floorplan that our ID came up with based on our wants and base on his suggestions. He suggested that we seal off the foyer and create a new entrance to the house via the kitchen instead so that we have a proper space for the living room. It was actually one of our concern and we didn't realise we could actually do that until he mentioned it.
A few things we did was:
- Demolishing of the storeroom and shifting it to the back of the toy museum room
- Knocking down the service yard wall to create a open kitchen concept & sealing the service yard entrance
- Extend the study room into the living room to create a bigger room for the museum
- Creating a door frame for the master bedroom
- Rebuilding the wall in between the bedrooms.
This is our foyer area where we decided to have built-in carpentry to house our shoes, DB box, internet, robot vacuum and other miscellaneous stuffs.
We decided to seal off the window at the foyer as we have a lot of toys to display and we are afraid the sun will damage them and cause discolouration. Not sure if we will regret this in the future! HAHA
This is our kitchen that we rarely use (for now) as we are working shifts. We choose to tile our kitchen and service yard floors because we're concern that if we're to lay vinyl, the kitchen floor will get oily.
BUT CAN WE SAY, WE REALLY LOVE HOW OUR TILES LOOK!?!? It actually wasn’t our first choice and we’re so glad that we took the plunge to get this tile. Oh, and our kitchen and service yard has the most carpentry as we don’t have a proper storeroom to store our items so we decided for more built-ins here.
Also, we requested for a taller kitchen island mainly for storage but also requested to seal off the seating area part as space is one of our concern, and someone sitting there will block the walkway to the toilet.
This is the service yard x kitchen area. The fridge wasn't actually suppose to be here but we had no choice because the freezer drawers can’t be fully open if we placed it near the entrance of the foyer. SIGH!
Notice a few things missing in our living room? Yes, that's right, we don't have a sofa, TV and TV console. The reason why we don't have a TV is because we don’t really watch TV at our previous home and we feel with a projector, it is more convenient if we want to shift it around.
But this space is definitely still a work in progress as in the near future, we intend to get a sofa so that there will be a proper seat for our guests.
Our dining area is also located in the living room and actually, we did install a pendant light above our dining table but we decided to have it remove. I will cover more about it in other post!
Also, we got our dining chairs from taobao and we love that it matches the theme of our house! We also love our dining table a lot and the thing is, this wasn’t our actual table! Will share more about it in the next few weeks about what happened!
This is one of our spare bedrooms that we currently using to display our other toy collection. We decided not to have any build in carpentry in this room and another bedroom as we want our future kids to have the freedom to decide how they want to style their bedroom.
And now, we have come to the end of the house tour cause we don’t have a picture of our bedroom and museum yet. Will update more about this area in the future!
Just going to show you Jasmin's popmart pucky collection! Love these series as it really matches the kitchen theme so that’s why it is hanged in the kitchen!
AND WE REALLY LOVE HARRY POTTER IF YOU DON’T KNOW YET and this is our small collection/shrine of it! Too many things to show but if you’re interested, you can view the full collection on our IG!
Another collection we have is LEGO minifigures! This is Jo’s collection and he has a range from Marvel to DC to Disney to Harry potter! These frames were custom made and bought from carousel and they are really gorgeous to look at!