Welcome to our home-in-the-making! Join us on a tour through the process of designing our living space, all while staying on a budget and managing the design ourselves. We hope our journey inspires and equips you with the confidence to embark on your own interior design adventure.
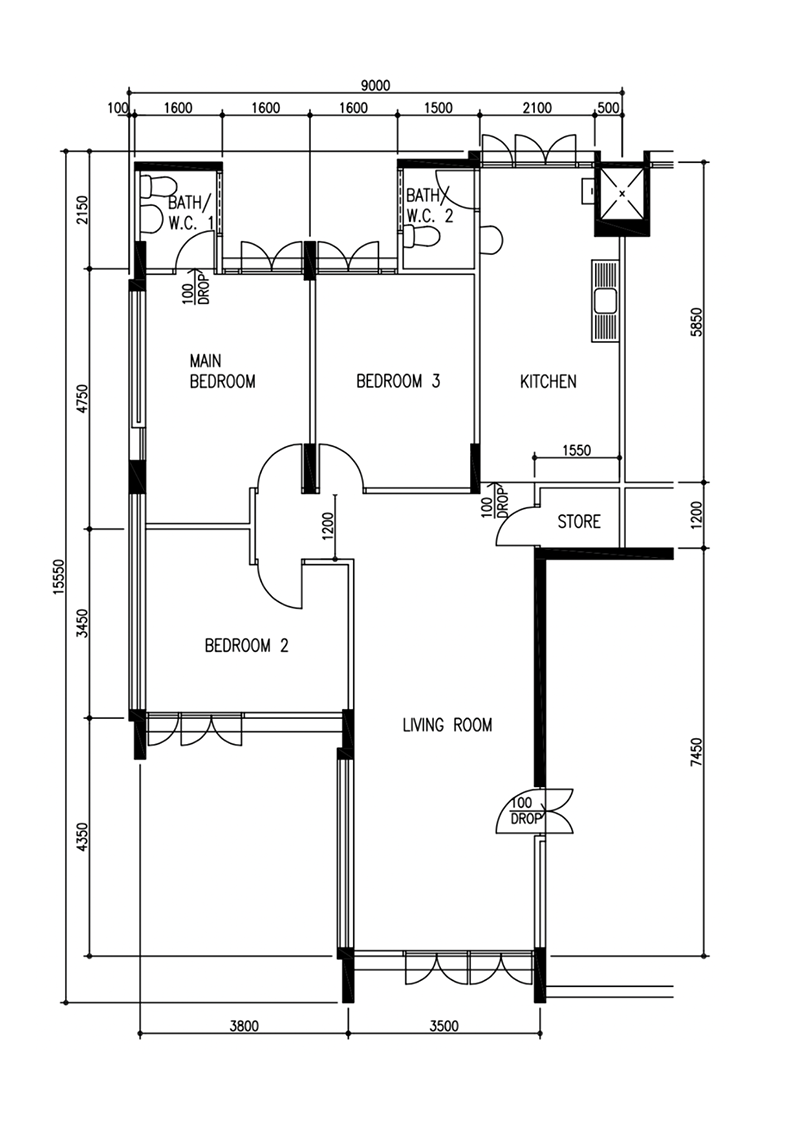
Our design journey started with a vision and a floor plan. Recognising budget constraints, we strategically focused on heavy interior design in the kitchen and bathrooms, while keeping the rest of the rooms more straightforward.
Step into our home, where basic interior design meets eclectic styling. Before diving into the design process, we took several crucial steps:
• Met with interior designers to weigh the pros and cons.
• Conducted house measurements and discussed practicalities like weather and fan placement.
• Explored our living habits and navigating behaviours, considering individual heights and potential clashes with low hanging lights.
• Sought advice from friends and gathered inspiration from platforms like Pinterest and SightUnseen.
• Found a reliable contractor through word of mouth and created a comprehensive brief.
Understanding the renovation flow is crucial. To better visualize our ideas, we relied on two essential apps:
• Planner 5D - https://planner5d.com
• Figma - https://www.figma.com
If you're aiming for a swift move-in, before getting your house keys, take this time to conduct thorough research and finalise your choices for appliances, lights, and fittings. Begin delving into the finer points of interior design, such as crafting detailed plans for elements like the cross-section of kitchen cupboards or selecting the perfect bathroom tiles.
Don't hesitate to lean on your contractor during this phase—they are there to guide you through the intricacies of the process. Clearly communicate your needs and preferences to them, while also actively seeking their valuable advice.
When sourcing lights and fittings from international suppliers, it's advisable to place your orders well in advance—ideally 1 or 2 months prior to the commencement of electrical work. This ensures that your items arrive promptly and are ready for installation.
Consider scheduling your orders to coincide with periods when workers will be present in your home. This way, they can efficiently receive the packages on your behalf, providing a convenient solution for instances when you're away at work.
Planner 5D - DIY 3D Render
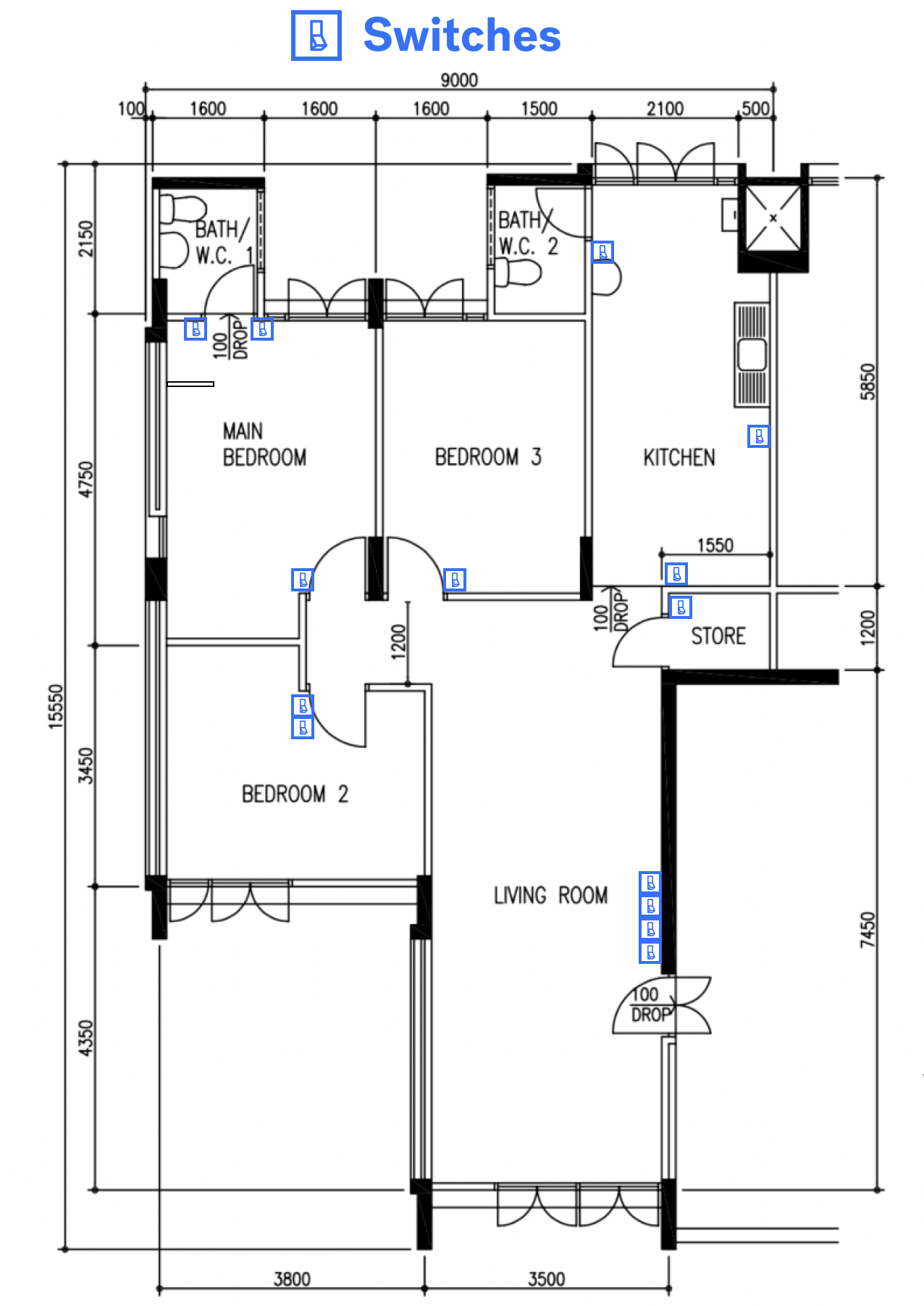
I used Planner 5d to build the kitchen design and check if the light source was suitable and if there was enough ambient light in certain areas of the house.
Attention to detail matters, especially in lighting and electrical plans. We used Planner 5D to check light sources and ensure proper ambient lighting in every corner.
Avoid leaving decisions solely to the electrician, provide them with thorough details. I printed out detailed plans, which I handed to the electrician during our first meeting. We also organized and labeled all the light we purchased, specifying their designated installation locations. This proactive approach ensures a seamless and accurate execution of the lighting plan.
We hope this house tour and our DIY design tips inspire and empower you to embark on your own interior design adventure. Remember, it's not just about the destination but the creative journey you undertake to make your space uniquely yours.
Follow us on @we_are_bedok_people_now for more updates on interior styling!