Hello everyone! We are @letscheonghome, living in the eastern part of Singapore. Welcome to our virtual housewarming!
We secured our BTO in 2018, received our keys in March 2024, completed a 4-month renovation, and officially moved in two months ago.
Initially, we were drawn to a monochromatic palette of white, grey, and black. However, we soon realized that a stark space didn’t feel as welcoming as we’d hoped. Our tastes evolved, and now our home embraces warm beige and brown tones, creating a cozy and inviting atmosphere.
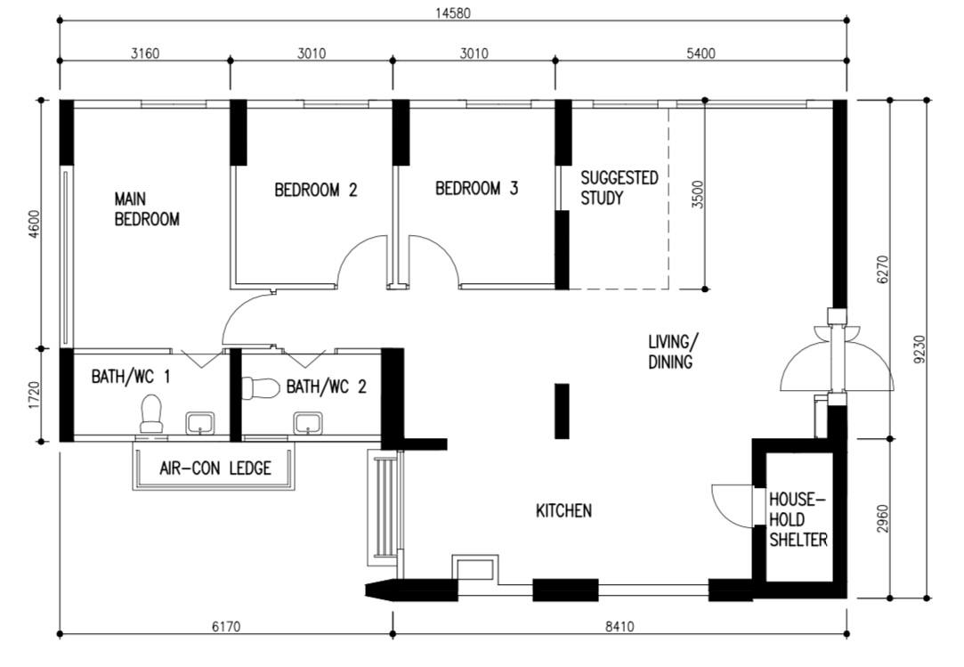
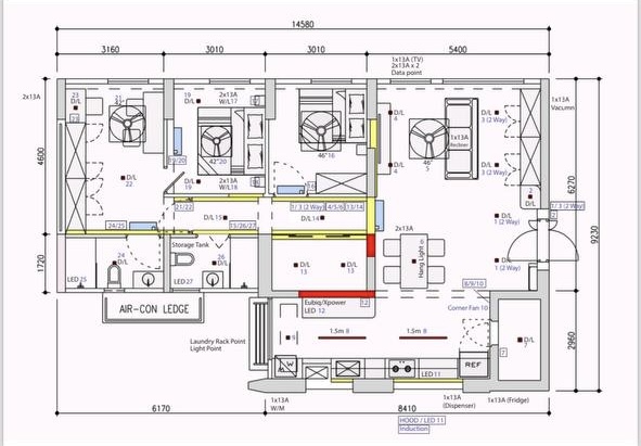
This is the original layout of our 5-room flat. As you can see, we were gifted a large structural beam right in the middle of our living room. After some serious head-scratching (and maybe a few desperate Google searches), we came up with a layout that works around the beam. See next photo for the layout that was provided by our ID!
Major changes we made:
1. We sealed the original bedroom door for bedroom 2 and created a new opening from the master bedroom.
2. We built walls around the structural beam in the living room and converted the space into a gym room (read on to see the final result!).
On the left side of the entryway, we built a full-length cabinet and a small settee to store our shoes, socks, handheld vacuum, documents, and more.
On the right, is where the DB box is hidden.
Here’s a full view of our full-length cabinet by the main door! We added a curved design to the back of the settee for a softer look.
As we enter, we’ll be welcomed by our favorite piece of furniture, where we spend most of our time. As mentioned in our living room post, this is definitely our favourite spot!
We kept the space simple by opting for a C-shaped table that can be tucked beside the sofa, rather than placing a coffee table between the sofa and television. This helps create a more open, spacious feel.
From the start, we knew we wanted a wooden table, though we were a bit concerned about the maintenance. Still, we took the plunge—and have no regrets!
We had a few non-negotiable criteria that helped us narrow down our options:
1. American Black Walnut
2. Live edge
3. Bookmatched
After countless visits to different wood shops, we finally found the perfect piece. It was love at first sight with this slab! Within minutes of seeing it, we made the decision and completed the purchase.
Many of our friends and relatives have commented on how long our kitchen looks. We didn’t tear down any walls here since our project doesn’t include a separate service yard — it’s integrated into the kitchen.
We opted for an open kitchen concept because we wanted to keep our home feeling spacious and knew we’d only be doing light cooking.
P.S. This is the tidiest it’s ever been! Normally, this area is a bit of a disaster zone with pots, plates, and cutlery scattered everywhere, and the laundry rack always looking like it’s auditioning for a fashion show.
The wet side of the kitchen - where we prepare and cook meals, as well as wash dishes. We opted for drawers in the lower cabinets, as they make it easier to organize and access items.
We selected sintered stone for our countertop and extended it to the backsplash to create a seamless look.
The dry side of the kitchen - where all the other appliances are seated. Similar to the wet area, we chose drawers for the lower cabinets for easy organization. One of our best decisions was installing the Eubiq power track, which allows us to conveniently power our equipment without having to move appliances to a fixed outlet.
The corridor that leads to the bedrooms, bathroom, and the gym.
We chose to spray paint our bedroom doors and door frame instead of changing it.
The gym that existed because of the structural beam!
Many people thought the gym occupies a separate room, but actually, it was created at part of the living room, around where the structural beam was located.
What was supposedly the master bedroom. We converted it into a wardrobe and study area because we knew it was impossible to fit both our bed and wardrobe in this room.