Welcome to our home! When deciding on the theme of our house, we were drawn to the idea of a warm cozy cottage in a green, verdant countryside, with birds chirping and the scent of wild blooms on the breeze... Then we remembered that we live in one of the most densely populated countries in Asia ._.
So we melded that theme with some modern practicality, and from that comes: The Modern Farmhouse with a rustic touch!
Here, we present the 3D rendering of our dry kitchen and dining area.
We love the natural character and warmth of wood, and how it contrasts with the austere elegance of whites and open spaces. The limited space of a flat also necessitates clever space management and storage solutions as we all know that clutter is a real problem when you love online shopping a little too much!
Cooking is a great way to keep costs down, eat healthier and even spend time together as a couple! To that end, we definitely wanted a way to prepare meals at home without filling the house with fumes. Hence, we worked with our amazing ID, Victoria from Lemonfridge, who proposed a novel idea that maximizes space in the living room while giving us a cleverly hidden kitchen prep area where we could fry up the smelliest of sambals and oiliest of steaks.
This is the 3D rendering of our wet kitchen/service yard area that is hidden behind those white doors!
Now, on to the real life pics! Featuring our dry kitchen and dining area we first moved in.
We had yet to style our open shelving then, but we knew that we would like our decor to be mostly functional ones. ;)
This is our wet kitchen/service yard ~
We decided to retain the HDB floor & wall tiles for ease of maintenance when doing heavy cooking. Plus, it saved us some renovation cost as well!
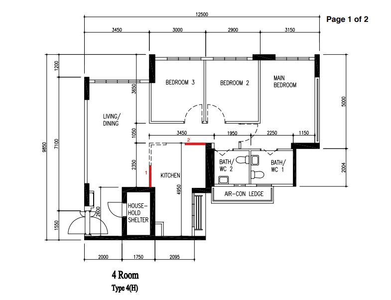
Our original BTO 4-room flat floor plan.
We hacked the walls in red to achieve a bigger dining/living space. We chose not to hack our common room for future planning sake, i.e. kids or more furry babies!
Original state of the flat with Optional Component Scheme, before the kitchen walls were hacked.
Kitchen walls hacked and wall partition built to create the wet kitchen area. You can see how the space has opened up!
Final shot of the completed works before we moved in!
We hope this post has been helpful for homeowners who are looking for inspiration, or embarking on their renovation journey! ;) Stay tuned for future updates!