Hello everyone! Welcome to our coastal-inspired abode at Punggol, a spacious 5-room BTO flat where we live with our two boys, aged 2 and 4 :)
Inspired by the charm of coastal homes and beach villas, we wanted to create a space that was bright, relaxing and inviting. Our interiors are all about crisp whites and earthy tones, and we bring in the beauty of nature by incorporating materials like wood, rattan and fabric.
We love how these elements blend together to create a cozy ambience that makes us feel right at home.
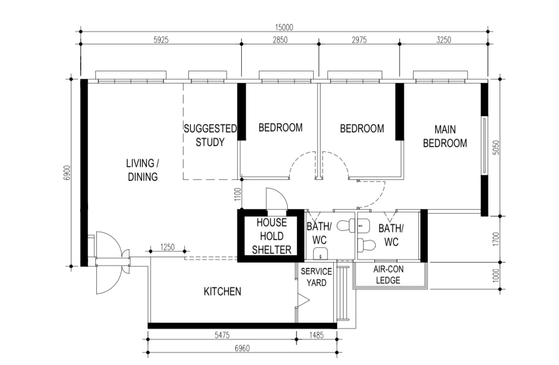
This is our floor plan that spans 113sqm. We decided an open kitchen concept would suit our lifestyle better and it was one of the best decisions we made. Can't wait to share more!
Stay tuned as we unveil more parts of our home that embrace the bright and airy coastal vibes we love :)
Like or save this post for later and follow us for more home styling content! ✨
IG: @northshoreloft