Hello fellow/ to-be homeowners! We're @theyoons, a family of two hoomans + one dog. We're so happy to share more about our apartment selection + space planning process. For our 2nd home, we prioritised looking for a place that would allow us to have a large, integrated living/ dining/ kitchen area, as we love open-concept living. For context, we moved out from a 5-room HDB BTO to a smaller 3-br resale condo unit, which meant that we were downsizing by quite a bit.
During our apartment selection process, we viewed almost 20 homes. Many were with awkward spaces like built-in bay windows (they were really annoying to us), strange corners, random pillars, or kitchen walls that couldn’t be hacked.
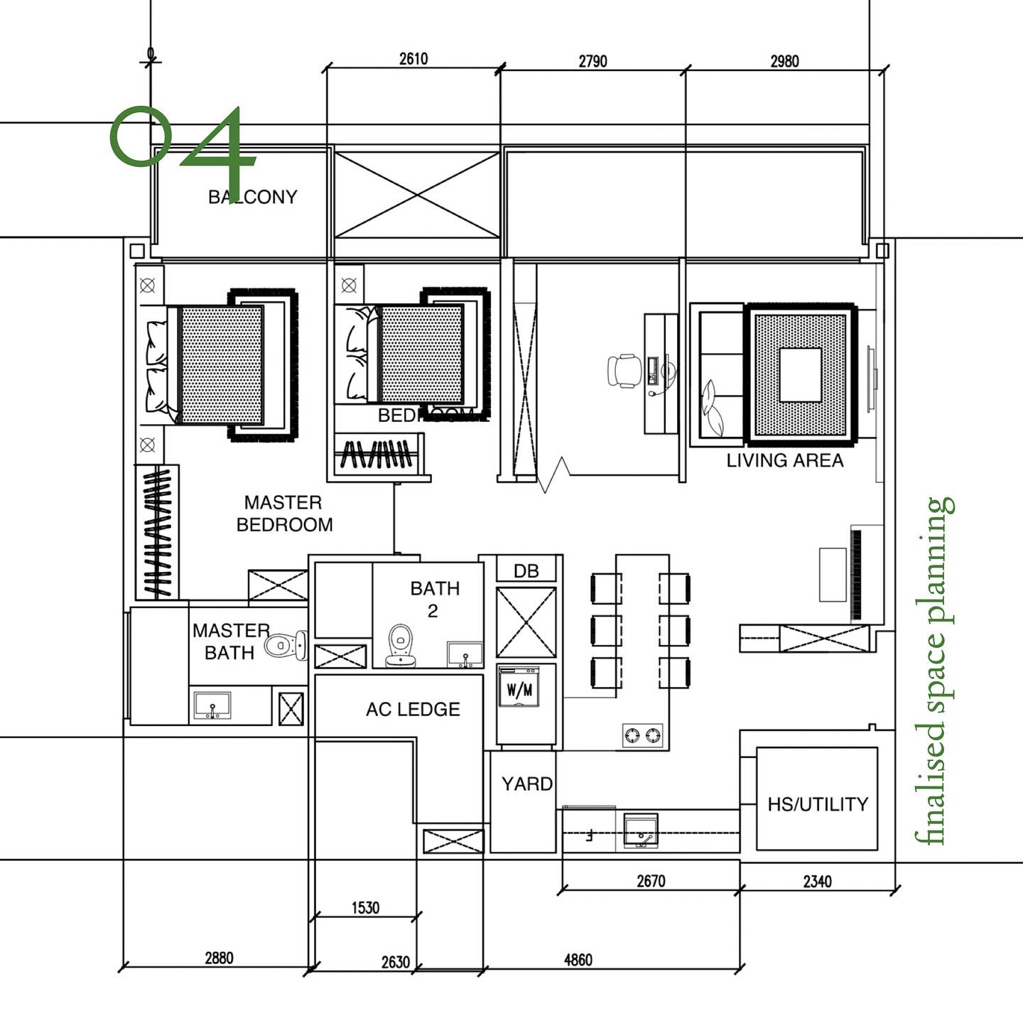
When we saw this 1,109sqft layout of our now-home, we really loved how it was simple and squarish. the only issue was that it had too many walls, which made the space look extremely small.
After countless of sketches and drawings, we redesigned the entire kitchen layout to maximise open areas, and managed to fit both a kitchen island and a 2m dining table! We also demolished the first bedroom walls to make a semi-open study, increasing the living area. So now we have an integrated living/ dining/ kitchen AND study area!
It was definitely a collaborative effort with our ID — briefing them accurately and keeping communication open, while at the same time, humbly receiving feedback and recommendations from the designer in order to maximise the space and carpentry work. Kudos to our ID for helping to finalise our terrible sketches into a proper renovation plan!
And so far, it's been two years in this 1,109sqft apartment, and we're loving it! Even though we downsized from 1,227sqft, this new space has complemented and integrated seamlessly with our lifestyles. From morning yoga exercises, to playtime with the dog, to food preparations to host family and friends, this space planning has worked out so well!