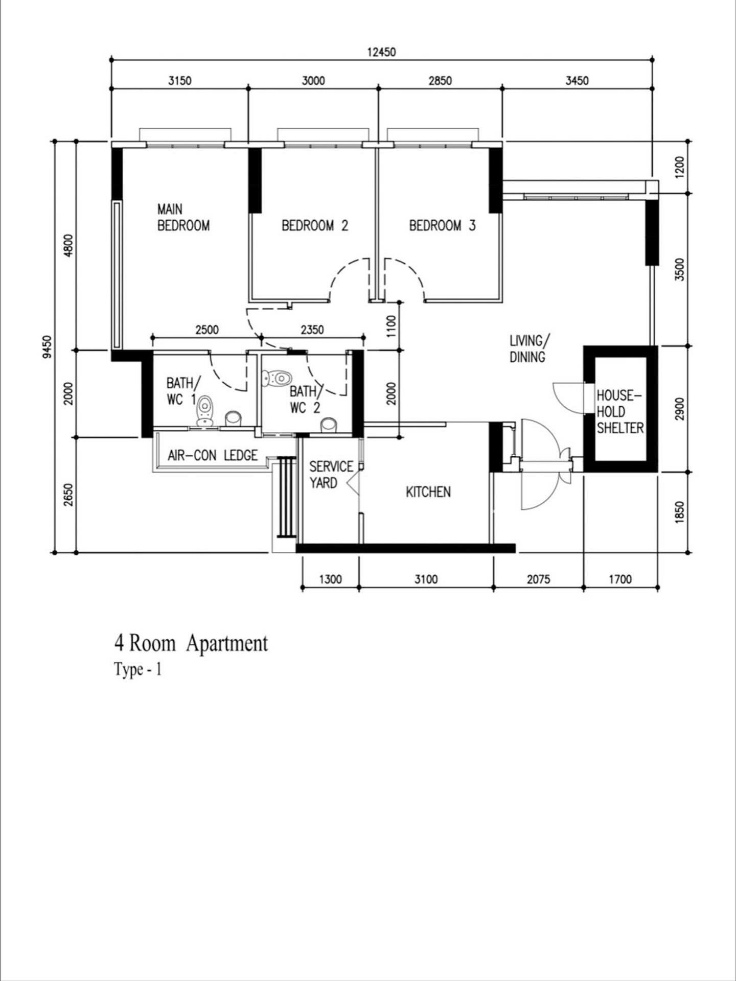
π‘ 4-Room HDB Apartment β 1001 sqft / 93 sqm
A warm, inviting home with a cohesive creamy grey-wood theme β¨ Soft neutrals, light textures, and warm tones make the space feel bright, cozy, and serene.
π Cozy Living & Dining β Open, airy, and perfect for family moments.
π³ Half-Open Kitchen β Stylish, functional, and connected to the dining area.
π 3 Bedrooms β Flexible spaces for rest, work, or guests.
π 2 Bathrooms β Neutrally styled and convenient.
The palette and layout create a calm, airy home thatβs cozy yet modern β perfect for anyone who loves soft, minimalist elegance. π
#4RoomHDB #CreamyInterior #NeutralHome #SingaporeHomes #HalfOpenKitchen #MinimalWarmth #JapandiStyle #ModernLiving