Welcome to our Organic Modern home - a mix of warm woody tones, clean lines and pops of greenery🪴
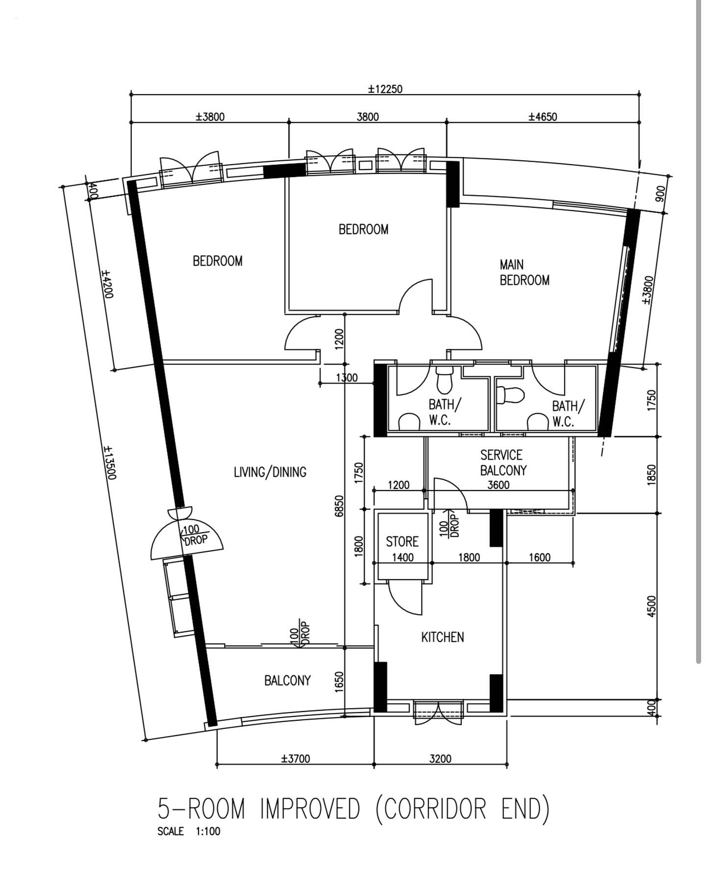
The original floor plan of our home, built in the 1990s. We spent about $100k on renovating and revamping this space, with the main goal of opening it up to allow more light and breeze to flow through the home…
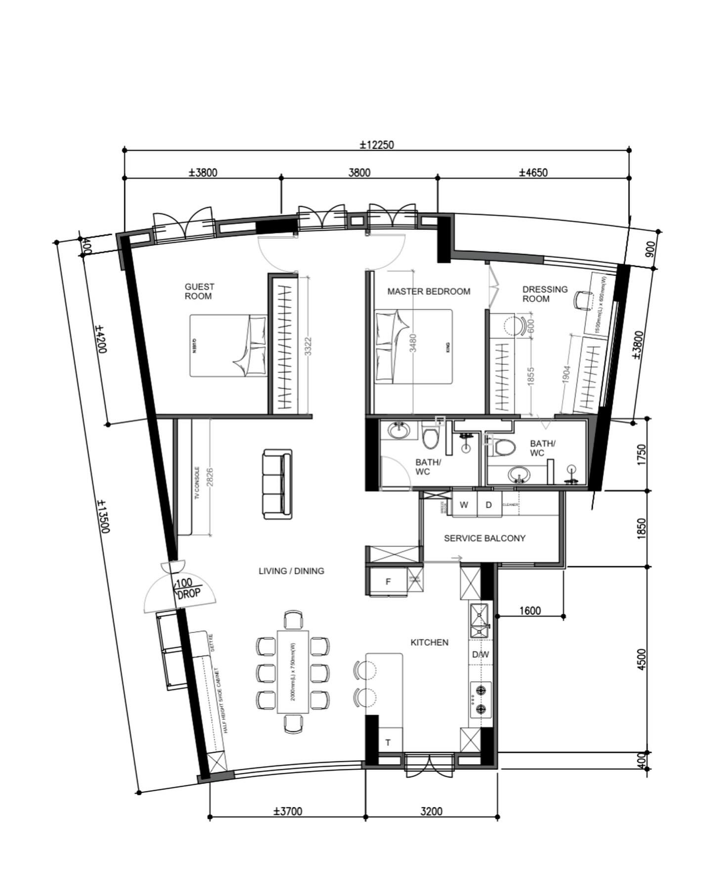
…which we did by breaking down one bedroom to create a walkway that allows a clear path through the whole space.
To fully utilize the new walkway, we built a full length cupboard spanning the length of the corridor to add tons of additional storage, which we needed since we tore down the original store room to open up the kitchen.
We absolutely LOVE how bright and airy our home is now!
No regrets creating this walkway that fills our home with tons of sunlight once golden hour hits🌞
Next up, the heart of our home🌾
We love hosting and cooking for our friends and family, and our open-concept kitchen allows us to keep conversations flowing, whether we’re at the dinner table or in the kitchen.
The open space also allows us a full-view of the living area - now we can watch TV while we prep our meals! 🤣
A strong cooker hood is an essential especially for an open space like ours. This one from Turbo does a great job of keeping smells at bay.
Featuring our little coffee corner - we love how our Morning machine adds a pop of colour to the space.
This leather sofa was one of the first pieces of furniture that we had set our hearts on, and we basically built the living area around this piece.
It’s definitely worth it and is one of our favourite pieces in the house! Super comfy and great for afternoon naps. It’s also super spacious, we’ve fit almost 10 people on the couch at once!
Another way we let in more light was by creating this full height window which looks into the service yard.
This allows tons of sunlight in, while the breeze block wall hides our laundry area and makes for a great feature!
A peak into our mini greenhouse🍃
If you’ve reached this point, thanks for coming along on our mini house tour😊
Follow us on Instagram @our_place_gs to see what else we get up to! 🌿