Welcome to the 4-room Japandi home! Not all HDB needs to be in a cookie cutter look. A play of colours, furniture and lighting can change the entire mood and vibe of the house.
To be consistent and bring out the Japandi feel, one laminate colour is used throughout all the built-in carpentry. Likewise, there is not much mix and match colours throughout the home. Similar colour palette and clean lines were the focus of creating this Japandi space.
Let's take a look at how I transformed the home. A side note: this is a non fengshui home.
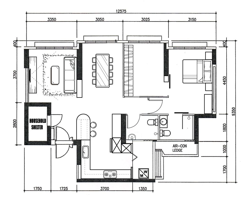
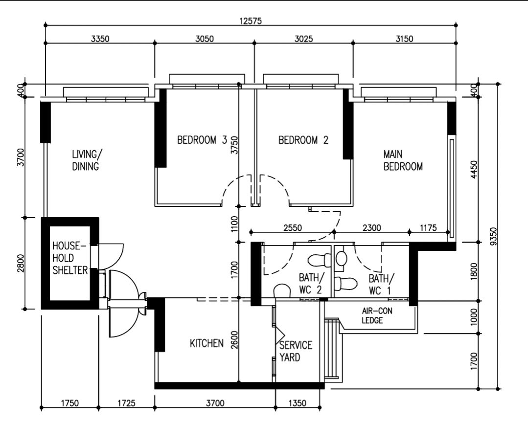
This is my 4-room HDB floor plan. It is a very typical HDB layout which made us pretty fixated on the functions of each space and limiting us to our options. Let's take a look at the floor plan in further detail.
It was already in the pipeline to hack out one room to open up the space and widen up the living area. During viewing, the space outside of the kitchen was dim with indirect light. Hence, it was pretty clear to me to forgo bedroom 3 and shorten the dim corridor. The only one regret is the structural wall on the left of bedroom 3 which I cannot hack out. Otherwise, the space I have will be even bigger and wider with more air flow.
In addition, there were a lot of awkward recessed area which were too "holey" for me. A point to note if you're like me, it will add on to the cost to flush down the recessed wall to "remove the awkward gap". Something the floorplan does not show are the structural beams on your ceiling. There were quite a few "surprises" during the reno which we cannot predict or plan ahead of time.
This was the before look of the living room with the original HDB floor tiles. It had the brown Muji tone and previous owner had a lot of Muji furniture pieces too. The brown partition was used to flush the recessed area behind the TV.
There was also bay window used for sitting and storage. I had initial intention to keep the bay window but only to realise that the measurements made it uncomfortable to sit. There was also an awkward gap that is a valley to collect dust. So, goodbye bay window. The whole house had window grilles which I removed. Also, the old school square box false ceiling had to go too.
Moving on to Bedroom 2. The room was filled with loose furniture + one built in 2 door wardrobe beside the door. This eases my hacking. This HDB project were also one of the last few to have parquet flooring for the bedrooms as the newer ones are clad with vinyl.
This is the newly formed Bedroom 2. The initial plan was to convert it to a guest room for sleepovers for friends or mini staycays for parents. However after consideration, it was converted into a walk-in wardrobe room instead. Now, the dream of a larger wardrobe is fulfilled! All the clothes can be hung and displayed fully instead of folding and dumping in some secluded corner.
Half of this room on the opposite side will also be converted to gym usage in the near future. Also, no false ceiling is in this room.
One unique feature in this room is the curtains. Jason from Coesa came down to site visit to tidy up details after our confirmation. Realising the usage of this room, he customised a one piece curtains that draws from the left to right instead of the usual 2-piece middle opening.
The Master Bedroom has built-in floating bedframe that is connected to the wardrobe. Initially, I thought that the wardrobe was big and covered up all wall space till the toilet door. Upon viewing, I was disappointed as it was a tiny wardrobe with underutilised wall space. From the initial plan of keeping the wardrobe, it ended with hacking everything out.
Blinds were also used for all rooms including living room. That's another dust magnet which I will stay clear from. A unique point is the master bedroom is slightly longer than the usual, giving more walking space.
Loose furniture is used in my newly minted bedroom. There is more air flow and the room has also brighten up!
Storage bed was and is never a consideration as more air flow is preferred. Storage bed also meant that there will be unwanted and unknown residents aka pests sleeping under me. Items that need to be stored and only seen the daylight once in a blue moon should be items that should not even be kept!
Take a look at how the colour and material of the curtains give the room an added vibe!
Ceiling fan is necessary as not every night is an aircon night. It is positioned in the middle of the room instead of middle of the bed.
The open kitchen concept was the original from HDB when the previous owners took the home as a BTO. The kitchen had no top hung cabinets but only a singular unit of drying rack. The original layout was seen with Kompacplus as the backsplash all the way up till the ceiling. The other side of the wall space was also not fully utilised.
Now, the kitchen has top hung cabinets with no top hung drying rack. With height consideration, the top hung drying rack door will not be reached easily. The new kitchen uses quartz as tabletop and also backsplash. This is for more consistency and creating a uniformed look.
The top hung open shelf is meant to cut cost from adding more top hung cabinets and to act as the finishing to the backsplash.
The kitchen is extended outwards towards the living area with a peninsula. This peninsula doubles up from a a breakfast nook to a space where groceries are placed after entering the house.
This was the planned Bedroom 3 to be hacked! The structural wall which we cannot hack out is till the Muji bookshelf. The room space in a 4-room flat is really very small!
This is the space right outside the kitchen and bedroom 3 which was used as a dining area. This image was taken with lights on and the area was still dim!
Here comes my lovely 2.2m Casa dining table from Castlery which took up the entire space in Bedroom 3. Having more space for people to sit around is better than cramping everyone up! Also, such a big table can also act as a statement piece in the home. Having bigger furniture also plays tricks to our mind that makes the space visually bigger too.
By hacking this space out, it allows more light into the home and definitely more airflow too. This is the initial intention and purpose. With a bigger space, it will look awkward and weird if the table is too small.
There was not much renovation done to their common toilet. It is a very typical common toilet seen in most HDB. Here's featuring the louvered windows which I have removed and changed out. With the glass partition, the toilet is very cramped up and small.
When planning, it was already intended to open up the space and not do up any partition. This was meant to be able to wash bigger items and have more flexibility with the space. To future proof it, my ID decided to do up a kerb. In any case when I needed to put up a glass partition in the future, I can do so without the worry of tiling.
Even though this is common toilet meant for guests, there was also thought put into it to spruce up the space. When your guests come over, this should be the second most visited space. Make it intentional to create a space that is welcoming and not some common public toilet seen outside.
The initial plan of a pedestal sink was scraped because I do not want to guess what is behind that is not seen. The fear is too scary.
Clean lines and similar colour tones gave the home a bit more of a personal touch. The home you create must bring out your own personality and character!
Went with a clean flat mirror instead or storage mirror to keep it flushed down to the wall. On the side of dry area, half height subway tiles were used to give an additional touch of Japandi. This toilet is elevated with an extra touch of white and brushed gold.
Love how the modern terrazzo tiles took a cheeky play in this space too. This brings out the old school feel yet giving it a modern touch.
Thank you for reading such a long post and coming till this far! This is the final layout plan by my ID. It's because of him that the ideas from my brain plus his aesthetics sense birthed out such a safe haven for @inthekohzwu.
Honestly, the entire reno process was so enjoyable. There was so much fun designing, planning out and customising the space to live in. Seeing how the space went from before to after is so satisfying! Hope this helps you decide on what you want in your own cosy space!