Welcome to a place of ours!
The theme of our home is Japandi — a blend of Japanese and Scandinavian design influences. As first-time homeowners, we do not own much homeware, which is why some might also describe our home as minimalist.
Without further ado, let us take you through!
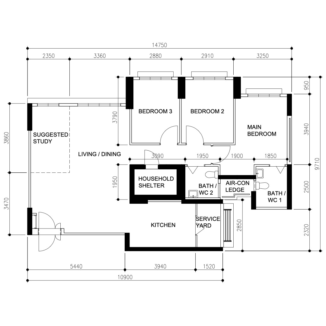
Here's a look at our original floor plan. Our five-room flat spans 1,216 sqft and includes three bedrooms.
The main living areas, which encompasses the living room and dining room, are connected in an open-plan layout which flows seamlessly.
The bedrooms are situated towards the back of the apartment, offering a quiet retreat from the main living spaces.
Overall, we are quite pleased with the original layout.
This is the final floor plan. We did not make much changes, except for pushing the master bedroom wall back to expand our wardrobe space. This way, we still get to keep all three bedrooms.
We adopted a warm and earthy colour palette, combined with clean lines and natural materials like wood and stone, hoping to create a cosy and inviting space.
The shoji doors help segregate the living room from the kitchen and bedrooms.
Our galley kitchen consists of open shelving at the top, grey sintered stone countertop and backsplash, and wooden cabinets below.
The sleek, space-saving water dispenser came highly recommended by a relative — definitely no regrets getting it!
Here, you can also see the wall sconce light which is part of a restaurant rescue project. We will share more in a later post.
We kept our common bathroom rather simple, with white subway tiles on the top half and large square grey tiles on the bottom half.
Our master bedroom fits a king-size bed and is designed with functionality in mind, without compromising on comfort.
It incorporates an eight-panel wardrobe, providing ample storage while maintaining enough walking space and eliminating the need for a walk-in wardrobe.
Thanks for joining the introductory tour of a place of ours! Stay tuned for more updates!
Find us on Instagram: @aplaceofours
Photo credits: @mesahausstudio
ID: @ascend.design