Hi there! As our name suggests, we are J&J and we welcome you to our humble abode 🫶🏻 Nested in Ubi, this is a 4-room BTO with an open kitchen concept and DIY limewash paint project 💛 We wanted our home to be exude bright, warm and calming vibes. Thus, we chose themes such as Japandi and Wabi-sabi.
You’ll see our open kitchen concept which is prevalent among newer households nowadays! In the middle, you’ll spot an island used for prep work and baking. I like that this layout made my public space look much bigger and allow a better flow of energy & socialisation during hostings too! ✨
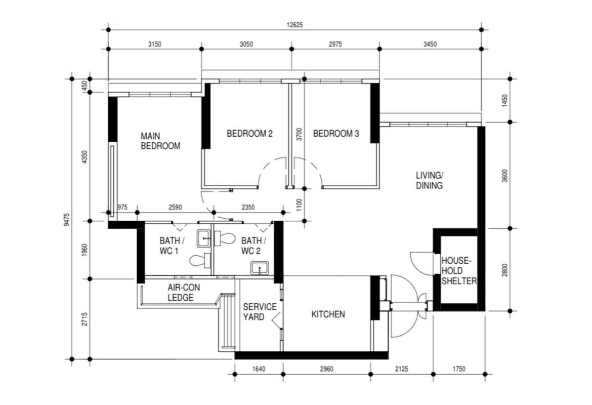
And this is AFTER. Some notable changes:
1) We hacked the L-shaped wall in Bedroom 3 and this becomes our Dining Room.
2) Adding an island at the dry pantry area of Kitchen.
3) Adding a wardrobe space in between the wall of Master Bedroom & Bedroom 2.
A sneak peek before entering the living room! After almost 2 years in, I have some advice for those who’s contemplating whether to get IKEA TV Console (BESTA). We have been facing mold issues so I truly won’t recommend this 🫢
Although the white and wood theme is commonly used, I still preferred it because I like my space to be open and calming. As my tastes might change in the future, I can replace portable display items to more colours instead! A note for homeowners - it’s easy to fall into trends & latest interior themes! However, as you’ll be using this space for the next 3-5 years or more, try to envision if the 30/35/40 year old you will still appreciate the layout or theme 🏠 do what makes you comfortable, as this will be your safe space ❤️
We did away with top cabinets and have singular or double shelves instead. In this case, we have a portable dish rack since we do not have top cabinets to store a hanging dish rack.
Our ‘Bedroom 3’. As we hacked the L shaped wall and removed the door frame, our public space became bigger! Do this with caution however, as some people still prefer to have it enclosed to use as a work space or kids’ bedroom in future :) It’s good to consider your changing needs in the next 5-10 years!
My vanity area sits in the Master Bedroom. I have a drawer space for makeup, a mirror, a lamp and a chair. There’s also a lower cabinet (not seen in photo) on the left where my ID designed - for me to keep my hairdryer and knickknacks!
We have a L-shaped wardrobe in the master bedroom. I remembered how Lamitak’s Salt Microcement Laminate just launched 2 years ago and my ID excitedly sent them to me! I was having a headache thinking how my wardrobe would look like but after seeing the laminate sample, I was sold! Bonus point - it looks the same as our own DIY limewash paint at entryway too.
Thanks for hearing me babble at my home tour! Follow along for more 🏠🫶🏻