Welcome to a tour of our newly renovated home! This is a 5-room resale HDB spanning 124 square meters (~1334 square feet), where every corner has been thoughtfully curated to reflect modern luxury and elegance while maximizing comfort and functionality.
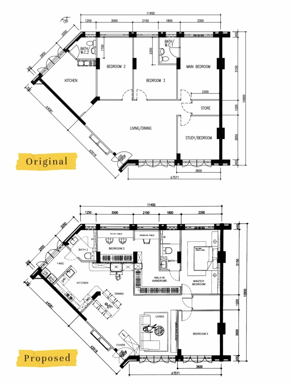
Starting off with our floorplan - our layout is rather unique with an angle at the entryway and kitchen area. We hacked down 2 walls to combine the walk-in wardrobe and study room with our master bedroom.
From the moment we step into the home, the tone is set with sleek monochromatic tones, rich textures, and an open-concept layout that invites natural light to flow freely throughout the space.
The design balances clean lines with curated accents, creating a sophisticated yet welcoming atmosphere.
In the living area, the TV feature wall with limewash paint texture and integrated lighting acts as a focal point, adding depth and visual intrigue.
A soft, neutral color palette is elevated by plush furnishings and elegant lighting fixtures.
Across the living room is a a fluted panel kitchen island which doubles as a casual dining space and focal design feature great for gatherings and hosting. The area embraces a modern table setup, highlighted by a contemporary hanging crystal lights and full height mirrored wall that expands the sense of space and add a touch of glamour.
The pantry area features our essential appliances such as water dispenser, coffee machine, wine chiller and fridge for easy access.
The heart of this home is the streamlined open kitchen, outfitted with premium cabinetry, quartz marble countertops, and integrated appliances.
True to the modern luxury theme, the bathroom features wall-to-floor marble tiles, a floating vanity with marble top, and glass-enclosed rain shower. Subtle gunmetal and black accents in the fixtures add an upscale hotel-like feel.
The master bedroom is designed to be a private sanctuary. A limewash painted wall in dark tones and warm ambient lighting work together to create a calm and luxurious atmosphere.
This room is solely for relaxation and sleeping, so we only have our bed, massage chair and TV.
A wall was hacked to join the adjacent room as our walk-in wardrobe.
Moving into our L-shaped walk-in wardrobe with full height black tinted glass doors.
The vanity table is right by the window, with a full length mirror on the wall right opposite the wardrobes.
Lastly, the master bedroom toilet which continues with the modern luxe theme features dark marble floor and glossy wall tiles, with a wall hung toilet and concealed rainshower. Fun fact: we sealed up the original door entrance and changed to the current side you are seeing. The walls have also been extended outwards for a bigger space!