Hello everyone! We are Claire and Scott from @creme.haus and we are really excited to be showing you the various nooks and crannies of our creamy home. π¦
Tucked away in the Northeast, the core concept for our 4-room BTO was cosy neutrals with woody accents. We love returning home to our comfy respite and there are days where we never want to leave.
Some of the key features of our home are hidden storages, an open kitchen and our favourite; having a combined master bedroom and study. π
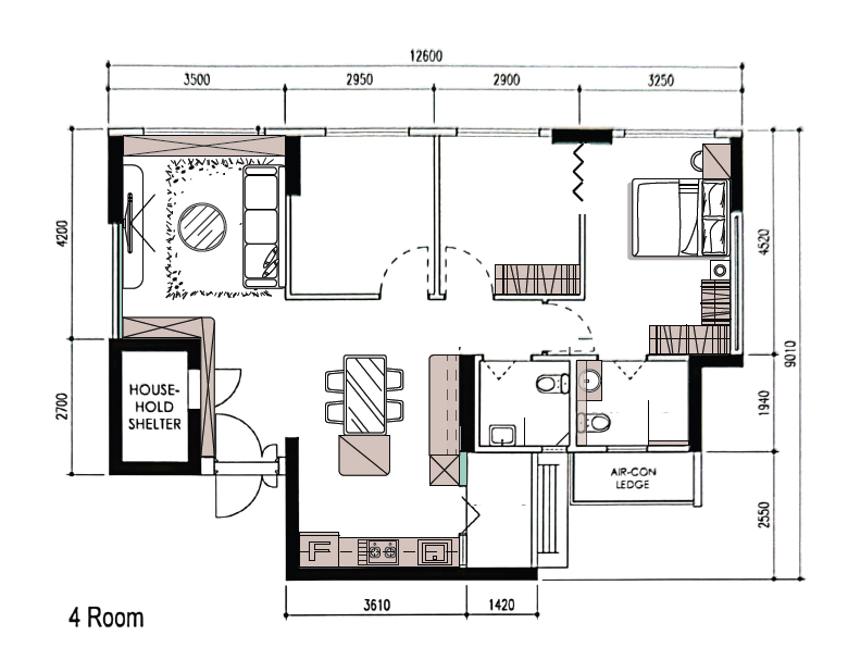
Here's a quick snapshot of the floor plan after alignment with Key Concept - our ID firm.
We kept closely to the original layout with the exception of hacking half a wall between our master bedroom and study to create a bifold door.
Besides that, we tried to incorporate as many curved corners as we could as we wanted the curves to create a cosy vibe.
Before:
This was how entryway looked before we started our renovation.
To create a more cohesive flow, we removed the DB storage doors, included a hidden door to the bomb shelter and added features like a display niche and arched mirror.
After:
Our arch mirror has received lots of compliments since we moved in and we enjoy using it to take our outfit photos π€ͺ
Opted for a door wrap as well to keep the look and feel of the house consistent as the original BTO door was dark brown.
Before:
Our living room originally had a recessed section which we were a little puzzled by. But we decided to take the chance to request for a false wall to be built which doubled up as a cable management method.
It became a brillant hack! β¨
After:
Our TV wall has no obvious wires dangling now~!
One iconic feature of the living room would be our window settee area. We have relatively big group of family and friends hence having additional seating is always a plus!
If you are wondering what is the niche in the middle for, it is a catered space for our little catto - milky! π
Before:
Peek the original state of our kitchen. The original HDB tiles were not to our liking and we decided to swop it out for something that would match our cream theme.
After:
The space where we have the most laughs and food tasting sessions. After owning our own kitchen, we have definitely been cooking alot more and it helped that our kitchen flows in an efficient cooking manner.
ββ
We hope you guys enjoyed the initial house tour and we can't wait to share more about the other areas of our home. π