Hello all! Welcome to the home of croissant and Kopi. Just a quick intro of ourselves. Husband loves croissant 🥐 and wife can’t live without Kopi daily ☕️. This is how we name our IG account.
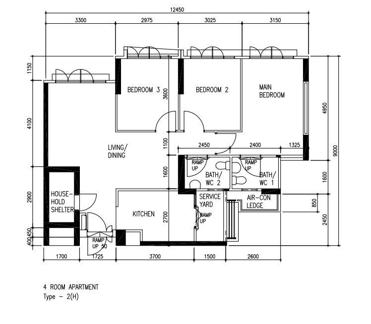
This is a 4 room resales hdb located in Northeast. 1001 sqft space and this is our first home. When we are preparing renovation, we wanted the style to be minimalist theme. After meet up with a few IDs, we found out that our preference styles are more towards clean, creamy and a little victorian style. We cannot accurately define the design style of this house, so it can also be called Freestyle.
Before we start house viewing, croissant and kopi had intensive discussion and list down some of the necessary checklist for their dream house. One of the most important checklist is the location, prefer walkable to MRT. This has narrow down our choices and it also comes with higher resale price.
Second is more on personal preference, we prefer on layout that the bomb shelter not near to the kitchen so that we can hack down the kitchen wall for open concept. The third preference is that the living room and kitchen prefer to be square, so the space can be maximally utilized. We will share more about the kitchen in future posts.
A little drama story behind this unit, we found this unit ourselves on property guru. It was also the first time that the two of us went to see a house without accompany by agent. On a random Sunday afternoon, wife found this listing seems to be quite near to our current living place. We contacted the seller agent and coincidentally they were open for house viewing on that day. And so we decided to just go and check it out.
When we first stepped into this house, a great wind blowing through the house from service yard window, making the house feel so airy and peaceful. When seller agent tried to share with us the development nearby this unit, we were standing at the kitchen (Just like the place shown in the photo), we both felt the wind kept blowing on our faces even though the air conditioner was not turned on.
At that time, we looked at each other and felt from the looks in our eyes that this was the house we were looking for! Although we hadn't seen the bedrooms yet, we already like the house :)
The two of us had a very quick discussion and offer to purchase 10 mins after we left the unit. Some of our friends say we are too hurry, they say we should request for second viewing and consider more before making a big decision. Yes, we do agree but we just trust our instincts!
We try to keep the entire house within 5 colors, so that the overall vibes more consistent and comfortable. We didn’t keep anything from the previous owner because the previous owner’s design didn’t match ours.
We prefer not to ruin the design of our entire house for a small savings. As such, we decided to take everything down and completely renovated the entire house.
We also replaced the bedrooms door to victorian style with gold handle. This is to consistent with the kitchen theme, which is more creamy with some gold accessories.
We made a cupboard at the entrance to store shoes. This design also perfectly hides the boom shelter door and practically store our belongings. We will share more about this great ideas suggested by our ID in following post :)
This is our first post on hipvans. Follow us on IG ( croissant.and.kopi) for more details. We will be sharing more of our house again. Stay tuned !