Our home renovation journey began with a mix of excitement and nervous anticipation for what was to come. But more than anything, it felt special as this was the moment we could create a space that was truly ours.
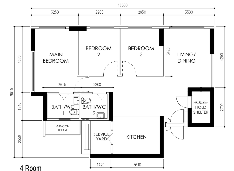
When we first looked at our floor plan, we really liked how the layout gave us the flexibility we were hoping for - especially with the living and dining areas. We started picturing how the space would feel during everyday moments - quiet mornings, casual dinners, and gatherings with family and friends.
Looking back, focusing on how we wanted to live in the space helped guide many of our renovation decisions later on.
Choosing the style of our home came next, and that was a journey in itself. We were torn between Scandinavian - clean, bright, and very IKEA-inspired - and Japandi, which reminded us of MUJI with its quiet, intentional simplicity.
What drew us to both styles was the calming presence of wood elements, something we knew we wanted in our everyday lives.
In the end, we leaned into Scandinavian design, as Japandi felt calm and minimal, but Scandinavian’s brightness and warmth made it feel more welcoming for everyday life.
With a style in mind, we dove into Pinterest and Instagram, browsing through home influencers and interior design firms. At first, it felt overwhelming - there were so many beautiful homes and ideas - but over time, we noticed ourselves drawn to certain colors, layouts, and materials.
That was when we created a mood board to help us narrow down our preferences and put our ideas into visuals. It also made conversations with our interior designer much easier, as images communicated our vision far more effectively than words ever could.
Then came the moment that made everything feel real: the 3D render! Seeing our ideas come to life in the actual space was exciting as the render captured what we had in mind.
As the renovation came together, we stayed with the Scandinavian style but decided to layer it with eclectic decor. Stay tuned for our home tour, where we’ll reveal how everything came together! ✨