All things living room in this second post
Our house does not have the most conventional layout. Being an older resale unit, it is understandable & expected that the shape of the various spaces are not very regular or symmetrical
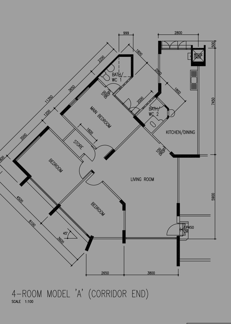
Realised I did not post the blueprint of the unit in the first post so here it is instead. Immediately, the living space is seen to be very big in size and has a slight angle/corner(?)
While the previous owners had build a false room in the inner part of the living space, we hacked those walls down and converted the area to a dining space instead. To me, that made most sense in maximising the usage. I also wanted the main area of the house to look spacious!
Statement piece number 1 - this gorgeous fluted TV console
This was a piece of furniture I had wanted since a very, very long time ago. Over the years, it had its design slightly tweaked but the fluted doors remained a beauty. I love the strong colour of the wood - it complements the wooden vinyl so well!
Also featuring our 65" TV that looks tiny on this huge, plain wall
On one side stands a lamp. As someone who detests using ceiling lamps, I made sure there is one larger lamp in the living space that will be able to light the main area
Perfect for movie nights, snuggling on the sofa
Not to worry though, there are several other table lamps across various corners of the living space. I can turn on as many or as few
When conceptualising the space in my mind, I knew the segregating of the main area into both living & dining meant I would have to allocate sufficient space into each. And that the segregation would be made with the sofa - having the sofa be seated right in the middle and serving as a visual to mark out the two areas. Unless we were to have a small and bare 2-seater (though there never was the plan for this), I had expected the space between the console & sofa to be not great...
...and I was very right! Although it is very possible to have a coffee table be situated between the two, it would take up the entire walking space and I did not want that at all. I also did not want us to develop the habit of eating our meals on the sofa (therefore minimising the usage of the dining area)
Very fortuitously, I chanced upon this mini table that could be oriented both vertically and horizontally. It fit the space perfectly! Now, we mostly use it to have post-dinner desserts like fruits and ice-cream
POV - standing within the dining space. From here, you can see how the living space edges out towards the windows. There is a big area, just in front of the main door, that we have intentionally kept empty for other purposes
A fuller view of the other side
Love love love these matte black track lights
I also strongly encourage having entrance lights! With switches by the main door. They will be the first thing you reach for when coming home at night and it has been extremely helpful
Surprise surprise - we also doubled these up to be two-way switches. The switch by the door can be a tad of a distance to walk towards to if one is in the dining area, JUST to turn those lights off, so the other two-way switch is by the corridor nearer to the other rooms. This was an idea suggested to us by the electrician and we thought it was pretty good! We def wouldn't have thought of two-way switches ourselves
Entrance lights illuminating the entryway perfectly
Second statement piece - this grey x light wood sofa that I immediately knew was "the one"
I wanted the exact colourway and a sofa that had short, narrow legs. I wanted a design that exudes comfort, hence the larger cushioning, but was also looking for a bottom that did not look too "heavy". This sofa ticked every requirement and, to seal the deal, is accompanied by the prettiest rattan - so befitting of the look I had envisioned for the house too 🪵
Here! You can distinctly see the irregular shape of the living space, the angle/corner I had mentioned earlier on
As an additional note, we have zero build-ins for the living space. Somehow, I happened to be able to find several loose furniture that would complement one another so well. I am also less fond of build-ins, for the designs, intentional or not, often appear too modern/luxurious/fancy for the look of the house I had wanted
This is merely a personal preference, of course. At the same time, after having moved in for 2.5 months now, a part of me wished I had done up a feature/statement wall. I do think most of the furniture here appear "low" and would like something that is much taller and captures one's attention immediately
Anyhow, till the third post! Thank you for reading. Hope you like our woody living space 🪵