Situated at the back of the apartment, our study was formerly a utility room. We've seen other homeowners with the same executive apartment layout turning this space into either a guest bedroom, storeroom or a walk-in closet (as it's right next to the master bedroom).
As we needed a WFH space, we decided to turn this space into a small study instead.
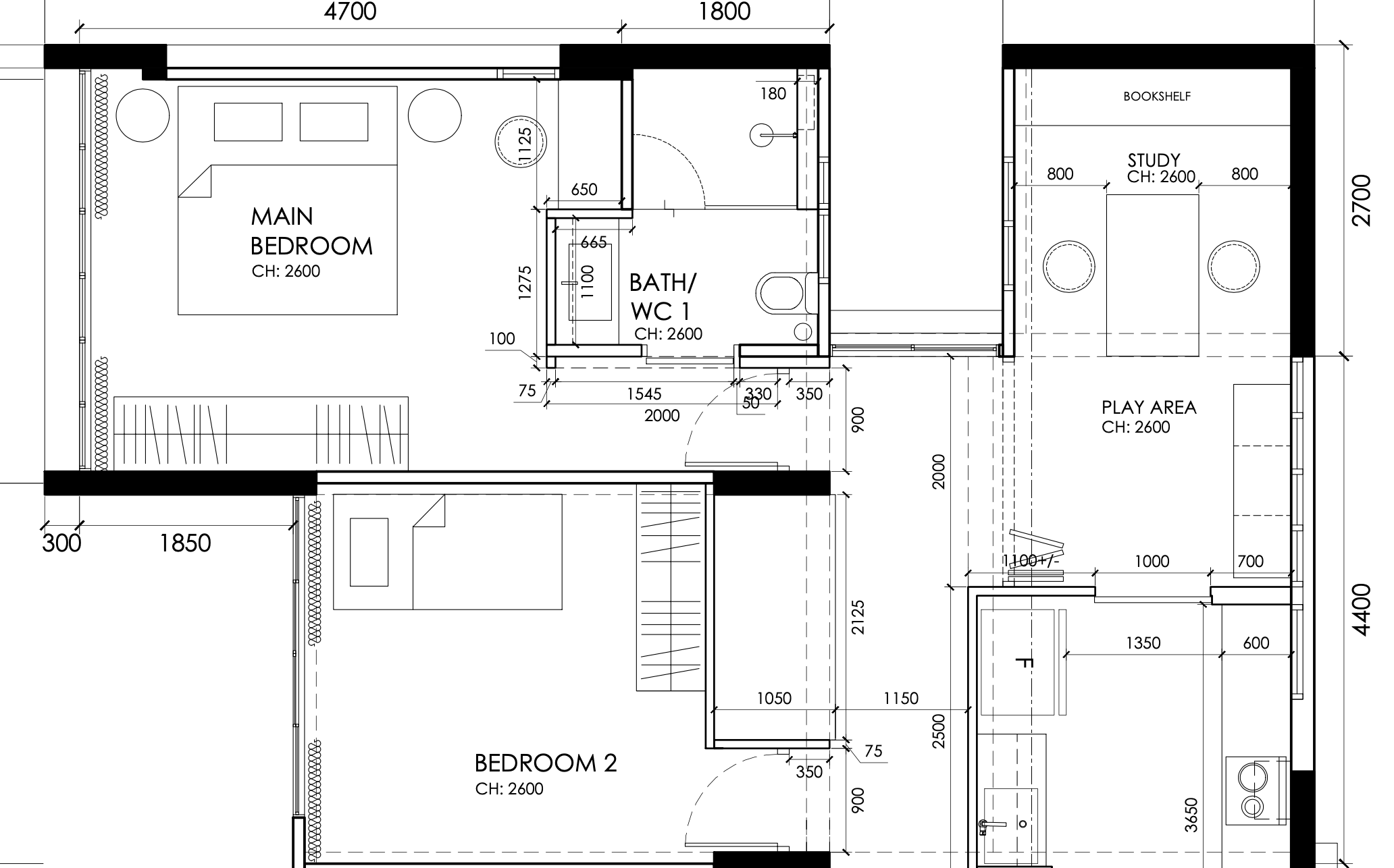
From this layout, you can see that our study is actually combined with the kids' playroom. We like that we're able to keep an eye on the kids as they play while we work!
From the kitchen, there is a sliding glass door. From the corridor, there is a bifold glass door. If we prefer to have the aircon on, or for added privacy, we can choose to close these doors.
Our 2.1m Muji shelves line the entire back wall, and they're filled with books, magazines and other paraphernalia for visual interest.
We were surprised that we could fit in two decent-size work desks!
The LED cove lighting adds a touch of cosiness to the space, while the IKEA artificial potted plant livens it up.
On weekdays, we actually spend most of our time here!