Hi there! Come along as we share the journey of creating Olive — our first home and a $30k self-designed 4-room BTO.
We didn’t set a fixed budget from the start, but after receiving quotes from two interior designers we loved (both ranging around $60–70k — the new normal, it seems), we decided to take the plunge and go the DIY route instead. Thankfully, we had help from our retired dad (a former contractor!) and his trusted network of friends.
We didn’t really follow a set theme, but we’ve found ourselves drawn to dark wood tones, curves, and neutrals — kinda wabi-sabi, kinda not.
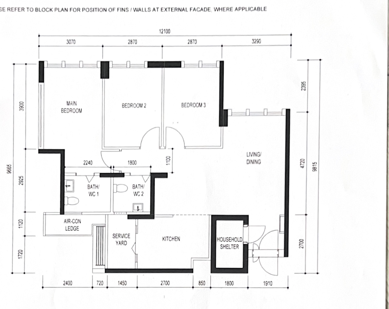
Here’s a peek at our original floorplan vs how we’ve reimagined the space:
We've hacked away the walls highlighted in yellow and built a partition to close up bedroom 2.
After a whirlwind 2.5 months of planning, renovating, and decision-making, we’re finally at the tail end of our reno journey — and it’s such a bittersweet feeling! We’ll be doing a full house overview — breaking it down by areas, sharing tips, and showing off some of our favourite little knick-knacks.
Stick around and follow along for more!