Welcome to our humble abode! We did not engage any ID, instead we got a contractor to manage the PM side of the works. 100% self-designed, a little unconventional to go full green, but we wanted it, it was a risk, but was worth it (:
We got a lot of items from Taobao, and our contractor was kind enough to do the installation for us, (: Let us bring you through.
Just our reno cost is about 60k, excluding all the furnitures and fittings.
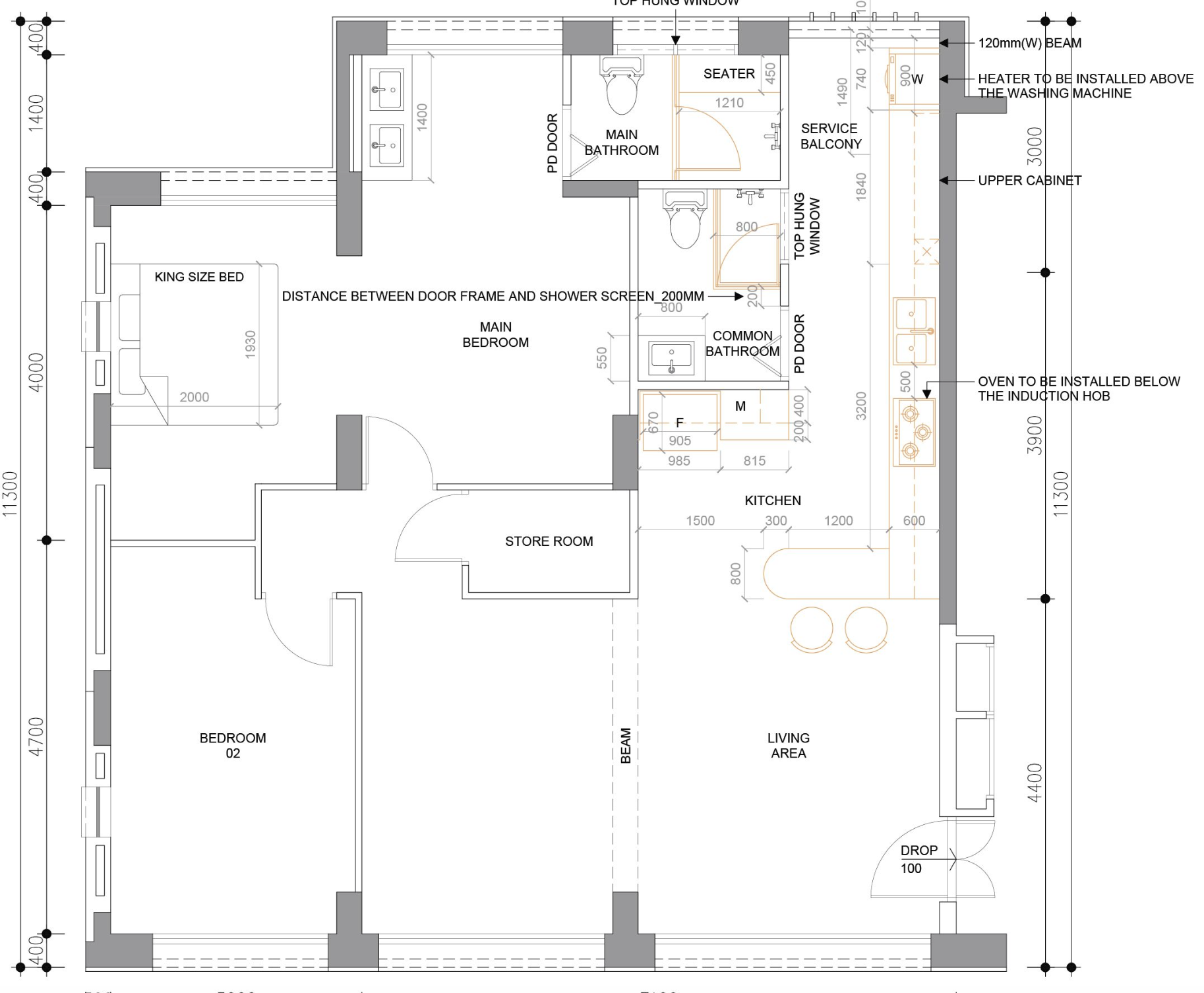
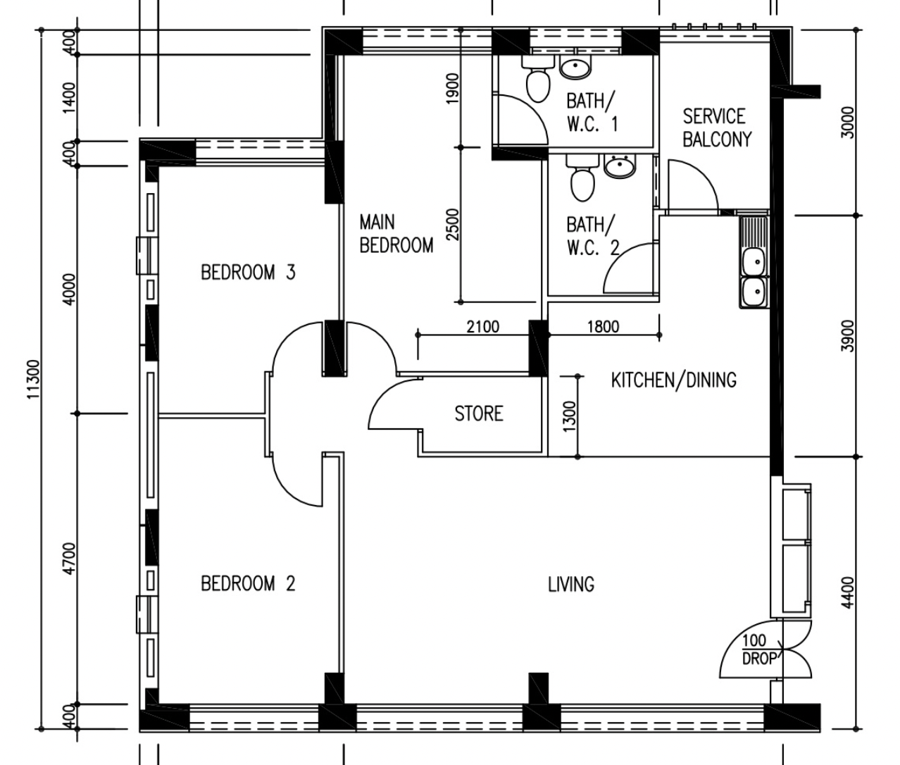
Here is the original layout plan. Places we hacked:
- Service balcony
- Opened up the kitchen area (As previous owner added a partition wall)
- Wall between main BR and BR 3
Opened up our kitchen for more wind flow in our living area!
Living area we split into 2 portion, "living room" & "indoor balcony". Always wanted a balcony, but unable to find one that meets our budget, hence, created one
Ultimately was a good decision, as less maintenance (:
We segregated the living room and "balcony" clearly due to the function of the space. We do spend most of our time at the balcony area though.
Chose black and white bamboo blinds to maximise the daylight, but as you can tell, still pretty dark.
As day time is already dark, we had to add more lights, but did not want any cove lights or spot lights, hence, all the hanging lights, standing lamp & plant light
Another reason why we love our sofa size, Luna can comfortably nap at her corner (:
We also bought and self installed a storage bench in case we have guest, we can remove the pillows for them to chill. For now is just storage & decors
More TB highlights: Hanging lights, Balcony table, Shoe cabinet, Balcony chairs
Suar Wood Slab Table from direct china factory, the stall owner was very kind to contact us through WeChat to show us the selection, we were able to customise the depth too.
The slab was about 50kg, so our contractor went to JB to buy the brackets and installed for us
Backsplash from Hafary, went with gut feeling and chose the unconventional.
You might be wondering, why a bidet? Very handy when cleaning the sink and removing tough stains, no regrets.
Went with modular pole system closet, so there is more room of customisation.
Got the cabinets from TB, and rattan boxes to maximise our storage, keeping stuff like bedsheets etc.
First big TB purchase: Our rattan double vanity set (Comes with the tap mixers and mirror).
Took the leap of faith and never look back ever since. The seller was very kind to take photo for us to ensure is the correct option.
Our very kind contractor then installed for us, even the light mirror too (:
Maximising our bathroom space by having the vanity outside, once again, no regrets.
In case you wondering about the seating.. it's really helpful when bathing our dog.