Hola! Welcome to Kiaoka's 94SQM BTO in Tengah ๐๐ป
Weโll be documenting bits of our journey as we slowly turn this space into something thatโs truly ours โ building our cosy corner, learning to adult, and working towards the dreamโฆ to kiao ka at home (a Hokkien phrase for chilling with our feets up) ๐ฃ
We are currently in our final stretch post-renovation handover and we can't wait to share more on our spaces and corners. But before we dive into those, here's a little throwback to when we first collected our keys in early April ๐๐ฅน
This unit comes with tiles and sanitary fittings and we were not given the option to opt out from these back in 2022.
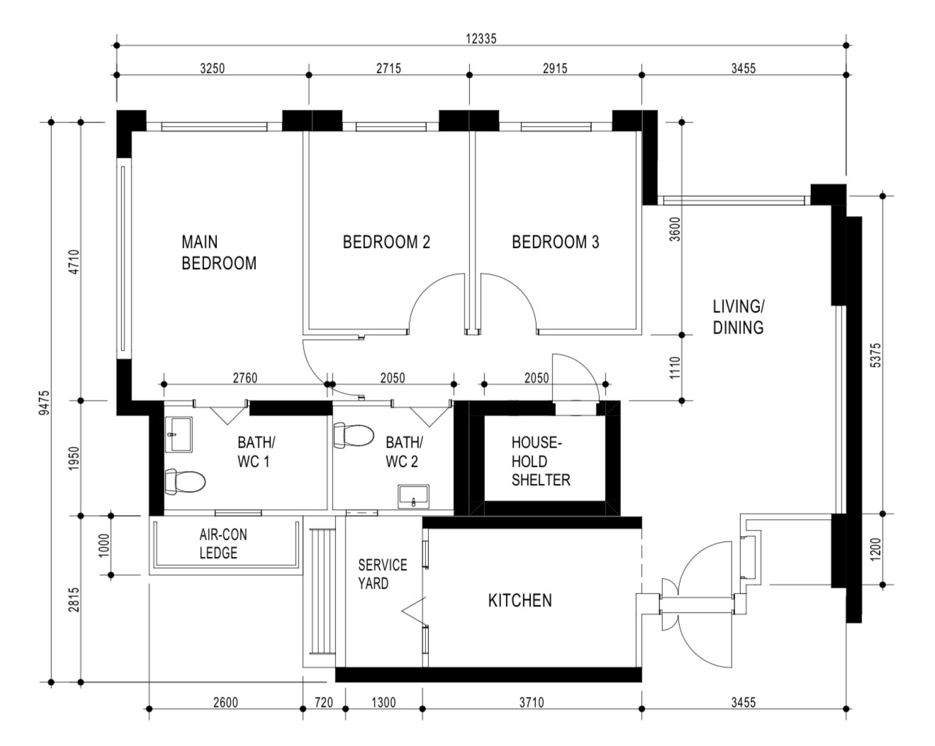
Here's a look at the original floorplan as we navigate the space!!
At first look, we have a bomb shelter right smack in the middle of the unit ๐ซฃ
A look at the living room! The tiles are so reflective ngl quite cute sight of the sky casted on the ground. But nope, these highly glossy tiles are not the look we are going for.
And this is taken from the original intended dining area, with a good view of the kitchen and corridor.
Common bedroom!
Common bathroom with the sanitary fittings & streaky wall tiles ๐ซฃ
Our MBR!! And a measuring tape in the middle to demarcate our "bedroom" and little "walk-in wardrobe".
Our Master Bathroom is massive ๐ฝ and this is just half of it!
Look at it!! HAHA Pretty sure this space allows for a bathtub ๐ but that is not we are going for
The walkway into the rooms and our bomb shelter on the right!
The space where we'll cook alot (hopefully)!! With this original layout, and the bomb shelter right beside, it unfortunately doesn't give is the option to have an open concept kitchen. But that's okay!! We'll make do with this boxy set up and see what's cooking ๐คช
Also peep the bi-fold door and windows that will lead us to our service yard!
Service yard where all the laundry & robot vacuum will be situated at. Would like to say that we are quite happy with the unit selection since its quite windy and of course some afternoon sun to keep our laundry toasty ๐คฃ
The bomb shelter (or rather, a storeroom) which came with a set of extra tiles for the entire unit. And of course some comfortable foldable chairs from Decathlon ๐ช for us to catch some breaks as we follow through the reno process!