Hi! We're livingwithcaramels! We're a small family of 3. Come on this journey of sharing our thought process of making a home with us :)
Our home is a 5-room BTO (113sqm). Our vision for our home was to keep it as simple as possible while maintaining a spacious play area for our son. We shared our Pinterest board with our ID with no 'theme' in mind. Just a myriad of homes from all over the world that appealed to us. From the board, our ID deemed our home Mid-Century Modern.
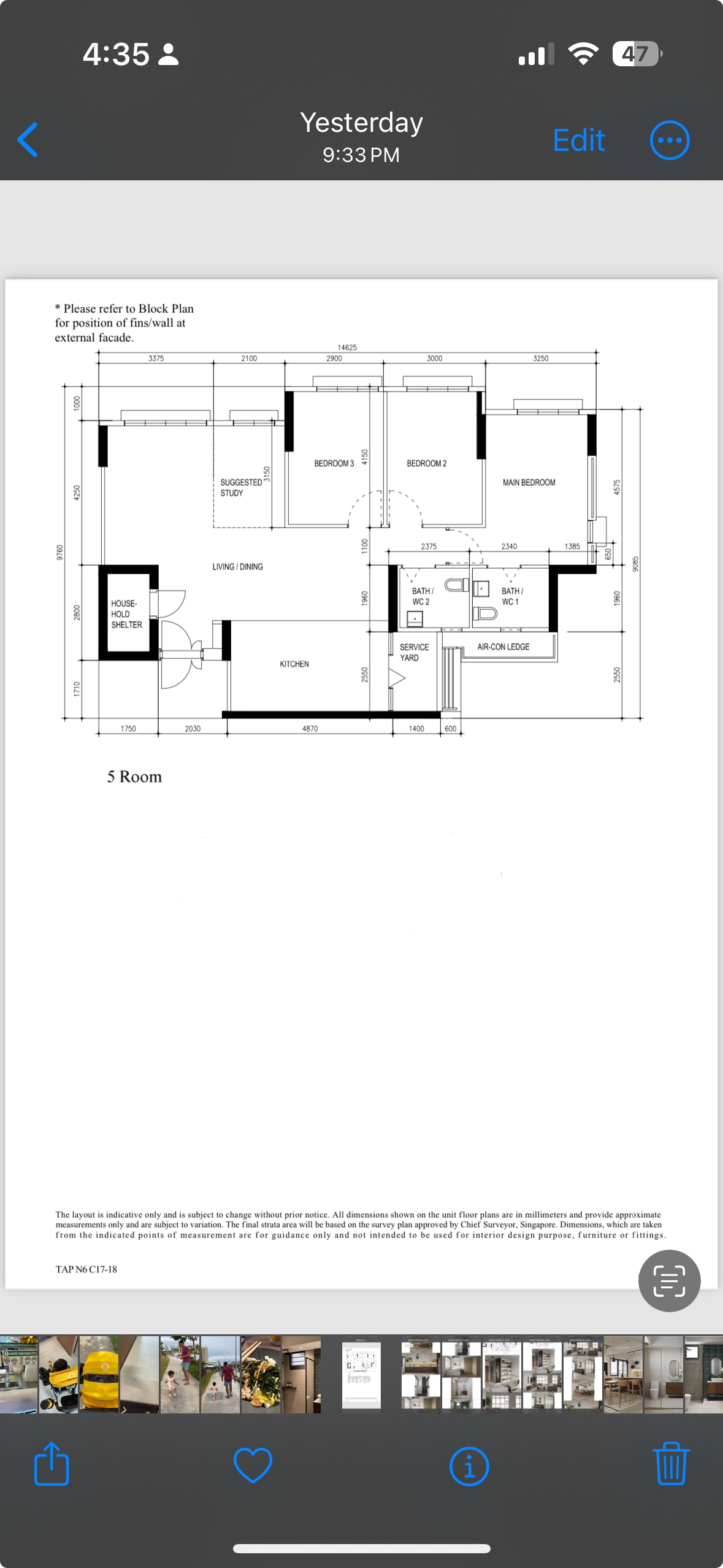
This is our floorplan. Our plan for our house is to have an open space since we want to make our home look bigger. So we were so glad that there aren't any walls that separate the kitchen from the rest of the house (save money cus we would've hacked the wall down :p)
With that 'money saved' we hacked down Bedroom 3 and put a Fluted Glass Sliding Door. We felt that the dining area was quite dim even in the day had we not hacked down the wall. Besides we had no plans for Bedroom 3 other than making it a Home Gym.
Notice how the household shelter is very close to our main door. This meant that we couldn't have a storage space in the carpentry that conceals the household shelter door. We initally wanted to have a shoe rack there but since there's no space at all for it, the concealment is just a concealment.
I believe that every house should have a 'statement' piece in the living room. We may not have a feature wall in our space but we do have this abstract pond mirror. OOTD mirror shots never looked better :) note: the taobao link where i bought this mirror from is no longer available somehow but this is the closest one that I found
The colour palate in our home is beigey-white-brown and I felt that we needed to liven up the area alittle bit, so we got plants - lots of them. A little green never hurt anyone :p
Our abstract pond mirror in all its glory. Our household shelter is a simple concealment with hooks for us to hang our bags or jackets when coming home! Sad that we don't get to put a shoe rack there due to space constraints but so happy at how it turned out.
Bedroom 3 was hacked to make space for a simple Home Gym. Everything from the floor mats, weights to the mirror was sourced out from Carousell! Don't sleep on Carousell is one money saving hack everyone should know :)
My son's bedroom is also very simple. We did nothing other than paint the walls this cute mustard colour. We figured the would grow out of the bed really quickly and wont really be needing a large wardrobe anytime soon so all the loose furniture would be great for now.
The open kitchen of my dreams! A functional island with power points for when we have steamboats or just simply WFH. An open shelve at the end of the island for me to store recipe books and can we have a moment for the Fluted Glass Door to the service yard?!
The hunt for this dining table was a rollercoaster ride. I first saw this at a curtain showroom and took photos of it. Went looking at local shops but the price was wayyy above our budget. So we turned to Taobao. Best decision ever.
The vanity in the Master Toilet. Since our common toilet is loud and playful, we wanted our master toilet to be more classy and muted with gold fittings. All our fittings are from Modeste