Hello! Welcome to Casito Chan, our resale masionette that was self-designed. Our family consists of mum, dad, two small boys and a helper.
We searched high and low for an ID before realising they were all just too expensive. And none of them really “got” our unique taste. In the end we decided to go the self-design route with a contractor whom we really trusted.
It was important that our house looked good - but also had to function well. We know ourselves best, so we designed the house to suit our daily routines and habits down to the smallest detail. It’s a delight to live here because everything works exactly as it should, whilst also expressing our character and family life.
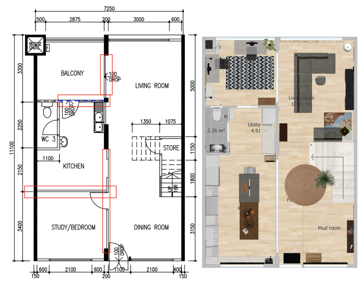
This is the first floor plan - the heart of the home, the public space where we entertain guests.
We knocked down many walls to create a massive open kitchen/dining room that flows into a living room. A previously open-air service yard was converted into a double-volume study.
The first thing you see upon entry is this massive pegboard with our shoe cabinet. It’s a striking and dramatic entrance.
This high-traffic space was conceptualised around our habits before the aesthetic was defined. We typically come in, hang up our bags/hats and our keys/lanyards. When we leave, we check our reflection in the mirror, spray cologne and reach for a last minute hairband, then pick out our most commonly used shoes. Every high-touch item had a spot designated for it. Then we searched for the items that would answer our needs, and shortlisted based on well the aesthetic matched.
This was a lot of coordination!
When you turn around and look to the left, you’ll see this long kitchen with its distinctive green shade and round pull handles. The handles are a vintage Scandinavian design, and our contractor was able to reverse-engineer it based on the pictures we sent him.
The kitchen is the busiest part of the house, and we put a lot of thought into it. We revised the design countless times before we were satisfied - luckily we were our own client!
It’s worth it, everyone loves hanging out in the kitchen. We eat here, revise the kids homework here, and even have work calls here.
The kitchen flows into a dry laundry area, and we used colour to visually demarcate the space. When you walk into the laundry area, the transition from the sunny kitchen into a dark grey space gives a sensation of shrinking down into a tunnel.
It’s a visual cue not to hang out here because it’s a functional area. :)
Turning away from the kitchen, you’ll see the living room area. We love our curtains, made with a special fabric from End Curtain.
Most of our mid-century shelving is housed here. Most of our kids toys are stored here too. It’s an adventure in itself trying to make toy storage aesthetic.
Our house has minimal built-ins, and is filled with many freestanding pieces of furniture that we can shift around. We think of the house like a blank canvas (neutral walls, wood textures, organic materials), upon which we can display objects that express our character and personality.
When you look to the left, there is a massive feature wall filled with photographs, memorabilia, and the kids' artwork.
There are frames permanently nailed to the wall, and also movable pieces on shelves and even interactive elements. These interactive photoframes are meant to showcase the kids' artwork. It holds up to 20-30 pieces of paper, and its very easy to just open up the front of the frame and load a new drawing in.
Note: I've lost where I've originally bought the frames from, but put in an alternative website. Buyer beware, they may not be legitimate seller.
Going up the staircase, a huge white globe light is a central feature of the stairwell. Ukiyo-e prints on the wall add to the Japanese-inspired ambience. Internal louvre windows add some light and ventilation in an otherwise dim and dark space.
Will feature the bedrooms in subsequent posts!