CommunaLogo
Sparkles
Info
We're currently tagging your post with your products. It'll be ready shortly.
CrossThick
thegarlichq
…
Living with the Garlics, home to 2 humans and 3 cats.
…
Follow
A 5-room mid-century + eclectic home for 3 cats!
3049
HouseTour
Virtual House Tour
Eclectic
HDB (Resale)
~1,400 sqft
2 br
Couple Living
Save image
Hey guys! Welcome to our home, which we share with our 3 fur kids.
#5roomresale
#5room
#hdb
#housewarming
#housetour
#sghome
#sghomes
#SGhomestories
#Housereno
#eclectic
Save image
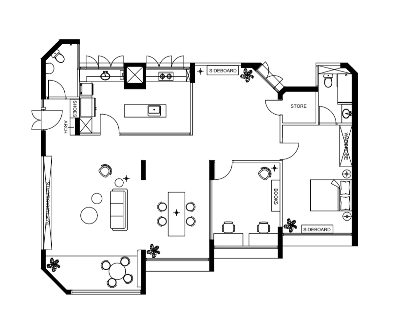
This is the original floor plan of our house.
#5roomresale
#5room
#hdb
#housewarming
#housetour
#SGhomestories
#sghome
#sghomedecor
#sghomes
#Housereno
#eclectic
#midcenturymodern
Save image
In order to give our home a greater sense of space and openness, we knocked out the walls of Bedroom 2 and converted it to our dining area which is next to our living room.
#5roomresale
#5room
#hdb
#housewarming
#housetour
#SGhomestories
#sghome
#sghomedecor
#sghomes
#Housereno
#eclectic
#midcenturymodern
Save image
Instead of a feature wall, we decided to create a built-in bookshelf that also doubled as a cat playground linking to the cat highway.
#5roomresale
#5room
#hdb
#housewarming
#housetour
#SGhomestories
#sghome
#sghomedecor
#sghomes
#Housereno
#eclectic
#midcenturymodern
Save image
We installed large panel glass panels for the kitchen!
#5roomresale
#5room
#housewarming
#housetour
#SGhomestories
#sghome
#sghomedecor
#sghomes
#Housereno
#eclectic
#midcenturymodern
Save image
Rather than a normal dining table, we opted for a dining island where we can entertain friends and family.
#5roomresale
#5room
#housewarming
#housetour
#SGhomestories
#sghome
#sghomedecor
#sghomes
#Housereno
#eclectic
#midcenturymodern
Save image
The studio has been turned into a cheery and bright room with lots of display shelves for all our knick-knacks.
#5roomresale
#5room
#SGhomestories
#sghomes
#housewarming
#housetour
#sghome
#sghomedecor
#eclectic
#midcenturymodern
Save image
For our guest toilet door, we decided on go with a wire mesh circle cut out. This ensures that the circular motif is recurring throughout the house.
#5roomresale
#5room
#SGhomestories
#sghome
#sghomedecor
#sghomes
#housetour
#housewarming
#eclectic
#midcenturymodern
Save image
We kept the green and brick colors consistent from the living and dining rooms, to the bedroom.
#5roomresale
#5room
#SGhomestories
#sghome
#sghomedecor
#sghomes
#housewarming
#housetour
#eclectic
#midcenturymodern
Save image
We
#5roomresale
#5room
#SGhomestories
#sghome
#sghomedecor
#sghomes
#housetour
#housewarming
#eclectic
#midcenturymodern
Save image
Hope you liked our short house tour :)
#5roomresale
#5room
#SGhomestories
#sghome
#sghomedecor
#sghomes
#housetour
#housewarming
#eclectic
#midcenturymodern
13 December 2023
10
2
0
thegarlichq
…
15
followers
0
following
Living with the Garlics, home to 2 humans and 3 cats.
…
Share this post
URL
Join our community!