Setting up a new place is all about a series of very personal choices. We hope this house-warming post could be of inspiration to you!
Starting with the entryway! We wanted something simple and welcoming. There is a shoe cabinet to one side. To the other, hooks are convenient for shopping bags and masks, and the Cain side table from Gamar Furniture doubles up as a stool!
The living room used to be a small and lacked good cross ventilation. By knocking down the compartment walls, light and air is able to flow in. This makes the whole area much more inviting and comfortable. A simple 3 seater sofa from Commune, a single seater from Castlery and a classic Tripod floor lamp from &tradition, is pulled together by a beautiful rug from Loom and Stone.
See below for before and after of our living room!
The living room is anchored by a tv on a rotatable tv console, which can be viewed from every corner of the home. The bedrooms are segmented from the other living areas by sliding doors with reeded glass, with an additional layer of day curtains for added privacy.
The marble floor is original. When good materials are re-used, we help reduce waste, which is the least that all of us can do!
Two Louis Poulsen PH5 pendant lights are the centrepiece of the dining room. The dining room transitions into the study room, segmented by a metal strip between the cement-textured tiles of the dining and the parquet in the study.
We love classic pieces, and none more so than the PH5 from Louis Poulsen!
Open concept means we can see all corners of the home from everywhere. The dining room is connected to the kitchen via the island. Check out the steel countertop!
The study room was planned to be masculine. Dark wood tones are used in this room. The parquet here, similar to the marble floor in the living, are original. They have been sand down and stained dark brown.
We love coffee! The setup here is where we spend a big part of the weekend pulling shots and tasting new beans. Open shelves are beautiful places to showcase your collections, and in our case, they are mugs that we collected from our travels!
We never felt that open shelves are difficult to maintain; a simple 2 minutes of dusting every weekend goes a long way!
The kitchen is likely where you will spend most of your time, other than the living room, hence sufficient countertop space is essential. We have ample countertop spaces (incl. the island) for food prep, coffee, water dispenser, and more!
This is the previous kitchen, before any renovation was done. Look at the transformation in the picture below!
We knocked down all the compartment walls and opened up the kitchen. Look at that glow! Light streams in from this side of the house via the common toilet. To get that glow, we used champagne and frosted glass to deliver that effect, and we are amazed every evening.
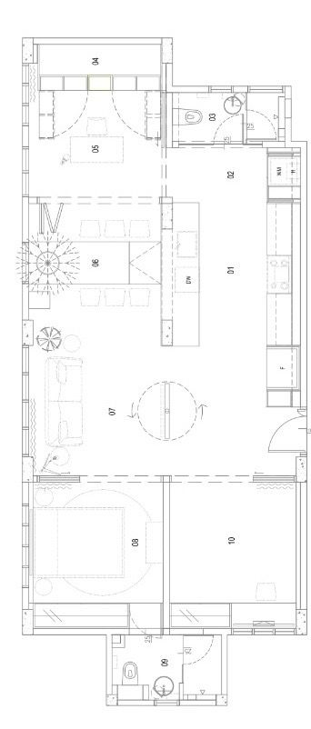
And this is the floor plan!
We believe that the home has to fit the personality of the homeowners, and can deliver both form and function. We hope this has been helpful to you, and we will share more in the coming weeks.
Do reach out to us here or on instagram (@mmangofish) if you'd like to know more!