Hello 👋 Welcome to our home! It is a resale 4-room model ‘A’ HDB corridor unit from the 1990s that we spent just under 60k renovating! We wanted to have a home that was open and breezy but still felt like a cosy space.
This is the pretty much the view you get when you walk in, minus our dining table. We both mainly work from home so a bright study was an essential requirement. The glass allows the overall line of sight through the home to be unbroken which visually expands the space.
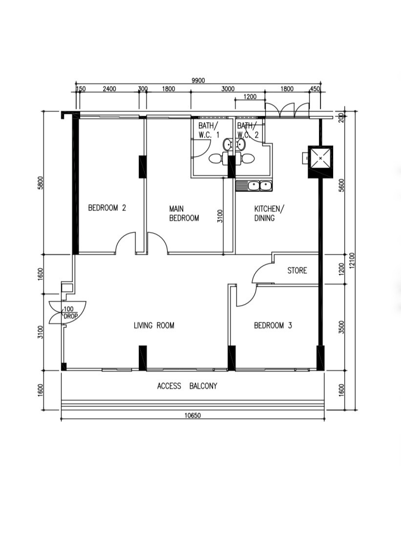
As you can see our layout is very square! While walking around during the viewing of the unit, we found ourselves excited by the length of the living room but a bit unsure about how to manage the flow of the house with the kitchen at “back” of the unit.
We ultimately got help from our ID with space plannning and this was the layout we settled on! Our entire renovation took about 17 weeks from Jan to May and we hacked away 1 room to make the living room space more open. We’ll be sharing more snippets about our reno and explorations of making use of the space!
This is the only part of the house where we opted for built in carpentry. We really wanted wood-look counters that were easy to maintain, this was made possible by utilisimg kompacplus as our counter top material. The glass study also allows light to come into the kitchen, making it brighter than it was in the original layout.
We also opted to put in vinyl for our whole home, including in the kitchen and have had no issues.
We “ate” into one of the rooms to make a walk in wardrobe for our master bedroom. We also decided to get a pole system wardrobe which would mean that we could easily upgrade/dismantle it in the future should we want to make any changes.
We share a bit more about our day to day home styling on our Instagram so feel free to drop us a follow there!