We spent around $130k renovating our home, and it was a full-on transformation! It was a major overhaul to breathe new life into an old space and tailor it completely to suit our lifestyle.
Some key highlights from our renovation journey:
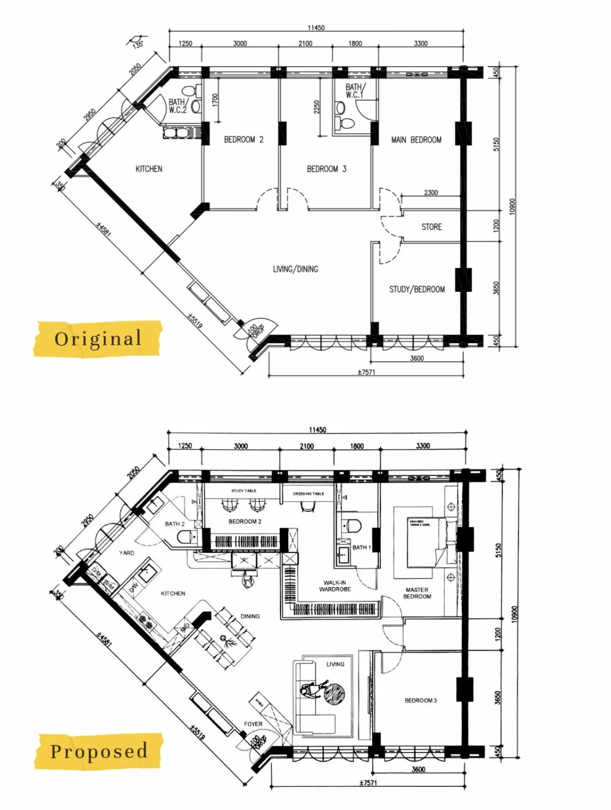
✨ 32 years old, 5-room resale flat, 124 sqm/1334 sqft
✨ Full-home makeover — We reconfigured the layout, updated electrical and plumbing, and replaced almost everything from flooring to ceilings.
✨ 900x900mm large format tiles were used throughout the home for a seamless, modern look. It makes the space feel bigger, cleaner, and definitely more luxurious.
✨ Both bathrooms got a serious upgrade — we hacked the original entrance walls and rebuilt them to expand the usable space. The result? Bigger, more functional, and hotel-like bathrooms that we absolutely love.
We’ll share more detailed breakdown of the different types of costs!
1. Hacking and Demolishing Works ($8k) 🔨
Starting off with our floorplan - as you can see, we did plenty of hacking works. Firstly, we hacked down 2 walls to combine the bedrooms 2 and 3 with the master bedroom, which are now the walk-in wardrobe and study room. Secondly, we hacked down the original toilet walls for both toilets in order to extend the space outwards, as the original space was too cramped. Last but not least, we demolished all previous wall/floor tiles and fixtures in the entire house.
2. Masonry works ($11.2k) 🧱
This cost includes the cement screed plastering works to patch back and make good the floors and walls of the entire house after the hacking, as well as waterproofing works for the wet areas.
For both bathrooms, new walls were constructed as we extended the space outwards. Inside, we also built new walls to cover up all the water pipes, and for a wall-hung toilet and concealed rainshower.
3. Tiling works ($26.6k) 🧱
We used 900x900mm large format marble tiles throughout the home to complete the modern luxe theme and made it look more spacious.
4. Partition / False Ceiling Works ($7.4k) ⚒️
We did up false ceiling for the living room, master bedroom and walk-in wardrobe for a more seamless look. For the entire home aircon pipes and trunking, we covered up using plaster board. For both bathrooms, we also covered up all the water pipes using plaster board to box up.
5. Carpentry ($36.2k) 🔨
This includes the carpentry works:
- Shoe cabinet at entryway
- TV console
- Kitchen island
- Kitchen and dry pantry cabinets
- Full height L-shape wardrobe
- Dressing table
- Bathroom sink cabinets
6. Painting, Materials and Other Costs 🎨⚡️
Painting (incl. plastering and limewash paint): $7.4k
Sintered stone marble top for kitchen island, kitchen countertop, kitchen backing, bathroom sink top: $8.6k
Mirrors and Shower Screen Glass: $6.2k
Cleaning and clearing of debris: $1.5k
Electrical: $8.6k
Lightings: $1.9k
Plumbing: $4.3k
Windows: $4.5k
The above costs shared does not include all the furniture and electrical appliances, which added up to another $50k-$60k. Renovating an older flat definitely comes with its challenges (and extra costs), but seeing how far it’s come makes everything worth it. Happy to share more details if you’re planning your own reno journey!