💫Welcome to our home journey💫
Hello everyone! We are MNA and come along as we share with you our home journey. We bought this 5 room resale point block and has been staying here for less than a year. Our flat was built in the 1970s and it is one of the oldest estate in CCK.
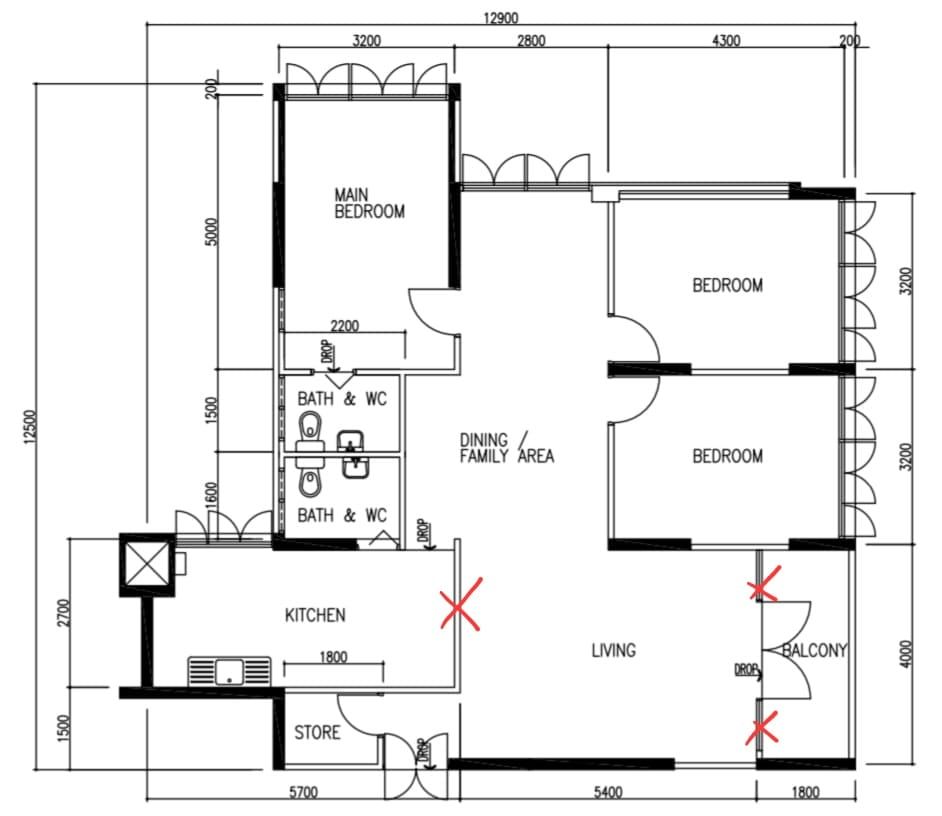
So here's the original floor plan. The size of our house is 119sqm. As the house was dated and old, major overhaul was needed. We hacked down the kitchen and balcony walls, doors, windows, floorings and both toilets to make the unit look more spacious.
This is the mood board that we envisioned, collated and shared with our ID for our home. For this project, we have appointed Alchemists Design. The overall look we are going for is a mix of eclectic and mid-century modern with an earthy tone as the base colour. To balance the calm, natural tones, we added bold and contrasting pieces that pop and stand out, giving the space character while still keeping it cosy and grounded.
Just a Pro tip: Find an ID that
•Can vibe with as you will be working together for a period of 2-3 months or more
•Can make your house vision come true while also proactively giving ideas
•Can work within your budget
Remember, it's YOUR Dream home, not the ID's!